Описание
Код лота: РАД-448769. Реализуется на торгах.
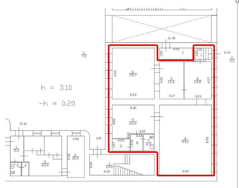
Продается нежилое помещение (отделение банка) в г. Кингисепп Ленинградской области, расположенное на 1 этаже 5-ти этажного жилого дома. Адрес: Ленинградская обл. , г. Кингисепп, ул. Воровского, д. 38 Общая площадь: 155,7 кв. м Этаж: 1 (всего 5 этажей) Вход: отдельный с улицы, отдельный со двора Высота потолков: 2,5 м Кадастровый номер: 47: 20: 0000000: 9800 Помещение обеспечено всеми необходимыми коммуникациями (водоснабжение, канализация, теплоснабжение) . Выделенная электрическая мощность: 34,2 кВт Помещение находится в собственности ПАО «Сбербанк России». Год постройки дома: 1978 г. Состояние отделки: стандартная офисная отделка. Состояние хорошее. Местоположение и транспортная доступность Помещение находится в центральной части города Кингисепп на одной из оживленных улиц. Подъезд к помещению осуществляется со стороны ул. Воровского. Окружение представлено преимущественно жилыми домами с коммерческими помещениями на первых этажах. Рядом с помещением находятся остановки общественного транспорта. Для сведения: помещение будет передано по акту приема-передачи не позднее 20.12.2026 г. Перспективное использование: Помещение возможно использовать в качестве торгово-офисного (банк, салон красоты, пункт выдачи, офис, магазин, медицинская или стоматологическая клиника) .
https: //catalog. lot-online. ru/index. php?dispatch=products. view&product_id=1601630
Продается нежилое помещение (отделение банка) в г. Кингисепп Ленинградской области, расположенное на 1 этаже 5-ти этажного жилого дома. Адрес: Ленинградская обл. , г. Кингисепп, ул. Воровского, д. 38 Общая площадь: 155,7 кв. м Этаж: 1 (всего 5 этажей) Вход: отдельный с улицы, отдельный со двора Высота потолков: 2,5 м Кадастровый номер: 47: 20: 0000000: 9800 Помещение обеспечено всеми необходимыми коммуникациями (водоснабжение, канализация, теплоснабжение) . Выделенная электрическая мощность: 34,2 кВт Помещение находится в собственности ПАО «Сбербанк России». Год постройки дома: 1978 г. Состояние отделки: стандартная офисная отделка. Состояние хорошее. Местоположение и транспортная доступность Помещение находится в центральной части города Кингисепп на одной из оживленных улиц. Подъезд к помещению осуществляется со стороны ул. Воровского. Окружение представлено преимущественно жилыми домами с коммерческими помещениями на первых этажах. Рядом с помещением находятся остановки общественного транспорта. Для сведения: помещение будет передано по акту приема-передачи не позднее 20.12.2026 г. Перспективное использование: Помещение возможно использовать в качестве торгово-офисного (банк, салон красоты, пункт выдачи, офис, магазин, медицинская или стоматологическая клиника) .
https: //catalog. lot-online. ru/index. php?dispatch=products. view&product_id=1601630
Расположение
Ленинградская обл, г Кингисепп, ул Воровского, д 38
Технические характеристики
Новость дня
Все новости
Сегодня — 29 апреля, среда / Москва
Московский цех открыл производство 3D-принтеров для металлической печати.
Сегодня — 29 апреля, среда / Москва
БМ-банк завершил продажу большей части площадей в ТЦ «Весна» на Новом Арбате.
Сегодня — 29 апреля, среда / Москва
Перефразированное название: "Сеть магазинов 'Жизньмарт' возобновляет свою деятельность в Челябинске"
Сегодня — 29 апреля, среда / Санкт-Петербург
Сервисный офис «Практик» начал свою работу на Октябрьской набережной в Санкт-Петербурге.
Сегодня — 29 апреля, среда / Санкт-Петербург
Строительство складских помещений в Санкт-Петербурге и Ленинградской области увеличилось в 2,5 раза.
Сегодня — 29 апреля, среда / Москва
Москва увеличила объем строительства в рамках программы МПТ до 9,5 миллионов квадратных метров
Сегодня — 29 апреля, среда / Санкт-Петербург
Соседский центр "ЖИВИ Клуб" открыл свои двери в Новоселье
Сегодня — 29 апреля, среда / Москва
"Завершено строительство пятиэтажной наземной парковки в районе Нагатинский Затон"
Сегодня — 29 апреля, среда / Санкт-Петербург
Рекордный уровень строительства складов зафиксирован в Санкт-Петербурге и Ленинградской области
Сегодня — 29 апреля, среда / Москва
Аренда складов в Москве снизилась на 25%
Вчера — 28 апреля, вторник / Москва
"Появление двух новых брендов на российском рынке в начале 2026 года"
Вчера — 28 апреля, вторник / Москва
27-этажный бизнес-центр класса А в Коммунарке завершает процесс утверждения своего архитектурного дизайна
Вчера — 28 апреля, вторник / Москва
Перефразированное название статьи: "Открытие первого флагманского магазина Lumique в «Авиапарке»"
Вчера — 28 апреля, вторник / Москва
"Подольская фабрика офсетной печати выставляет на приватизацию 49% своих акций"
Вчера — 28 апреля, вторник / Москва
Самострои в ЮВАО: площадь почти 4 тыс. кв. м за первый квартал
Вчера — 28 апреля, вторник / Москва
Иск на 11,7 млрд рублей подан банком «Санкт-Петербург» к структуре «Гранели»
Вчера — 28 апреля, вторник / Москва
"«Яндекс Фабрика» запускает цепь офлайн-магазинов в Москве"
Вчера — 28 апреля, вторник / Москва
Детская сеть магазинов "Кораблик" столкнулась с финансовыми трудностями
Вчера — 28 апреля, вторник / Москва
Снижение загрузки премиум отелей Москвы в первом квартале до 69,4%
Вчера — 28 апреля, вторник / Крым
"Продается комплекс солнечных электростанций на полуострове Крым"