Описание
В аренду предлагается блок помещений для организации точки питания – кафе или евро-столовой.
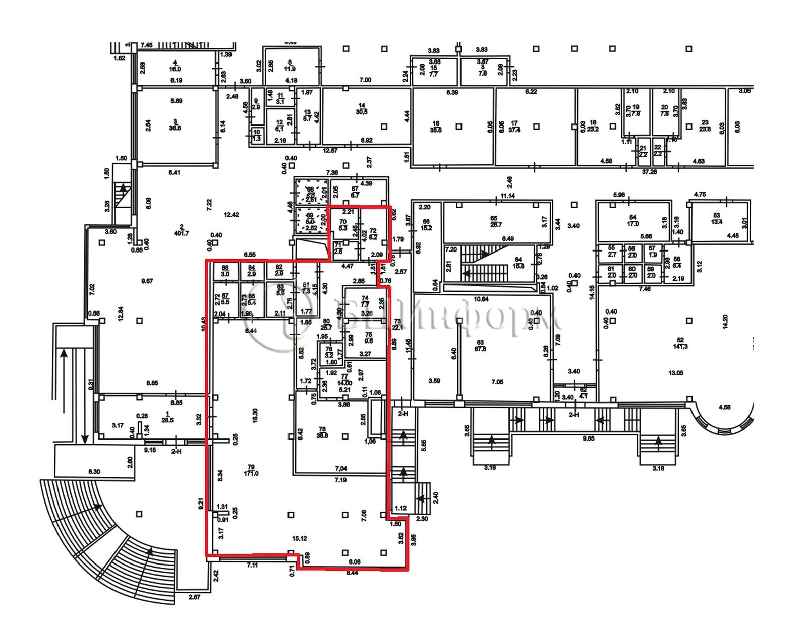
Площадь - 317 м.кв.
Первый этаж. Два входа: основной – для посетителей, второй – для разгрузки продуктов и выноса отходов.
Большой зал (open-space) для посетителей. Производственные помещения – горячий и холодный цеха, моечная, помещения для хранения продуктов. Два санузла.
Отделка зала: пол – ПВХ-плитка; стены – обои; потолок – подвесной грильято.
Отделка производственных помещений: стены/пол – кафель.
Дополнительно оплачивается:
- потребленная электроэнергия (оплачивается по отдельным счетам, на основании показаний приборов учета, установленных в помещении, по тарифам энергоснабжающей организации):
- водоснабжение/водоотведение (оплачивается по отдельным счетам, на основании показаний приборов учета, установленных в помещении, по тарифам поставщика);
- компенсация затрат Арендодателя на чистку жироуловителя, установленного на канализационном выпуске из Помещения.
Оснащение: приточно-вытяжная вентиляция, кондиционирование (потолочные фэнкойлы), охранная и пожарная сигнализации, система оповещения, слаботочные сети для подключения телефонии/интернета.
Готово к въезду потенциального арендатора. Договор аренды напрямую с собственником. Без скрытых комиссий и платежей.
Площадь - 317 м.кв.
Первый этаж. Два входа: основной – для посетителей, второй – для разгрузки продуктов и выноса отходов.
Большой зал (open-space) для посетителей. Производственные помещения – горячий и холодный цеха, моечная, помещения для хранения продуктов. Два санузла.
Отделка зала: пол – ПВХ-плитка; стены – обои; потолок – подвесной грильято.
Отделка производственных помещений: стены/пол – кафель.
Дополнительно оплачивается:
- потребленная электроэнергия (оплачивается по отдельным счетам, на основании показаний приборов учета, установленных в помещении, по тарифам энергоснабжающей организации):
- водоснабжение/водоотведение (оплачивается по отдельным счетам, на основании показаний приборов учета, установленных в помещении, по тарифам поставщика);
- компенсация затрат Арендодателя на чистку жироуловителя, установленного на канализационном выпуске из Помещения.
Оснащение: приточно-вытяжная вентиляция, кондиционирование (потолочные фэнкойлы), охранная и пожарная сигнализации, система оповещения, слаботочные сети для подключения телефонии/интернета.
Готово к въезду потенциального арендатора. Договор аренды напрямую с собственником. Без скрытых комиссий и платежей.
Расположение
г Санкт-Петербург, ул Савушкина, д 83 к 3 литера а
Старая Деревня
—
7 мин
Крестовский остров
—
19 мин
Комендантский проспект
—
31 мин
Технические характеристики
Параметры
Электричество
есть
Охрана
есть
Инженерия
кондиционер, вентиляция, пожарная сигнализация, лифт
Статус владельца объявления
агентство
Класс
b+
Новость дня
Расширение возможностей для B2B-клиентов: Avito вводит новые услуги для строительства складов
На платформе Авито теперь доступна категория "Коммерческое строительство" в сегменте услуг, предлагающая широкий выбор специализированных работ и возведение объектов "под ключ" для бизнеса, что упрощает поиск подрядчиков и субподрядчиков для коммерческих проектов.
Все новости
Сегодня — 30 апреля, четверг / Москва
"Бумеранг Капитал" увеличил свою долю в сети кафе-пекарен "Цех 85" до 50%
Сегодня — 30 апреля, четверг / Ставропольский
В Кисловодске начался проект строительства инвестиционного отеля "Реликт"
Сегодня — 30 апреля, четверг / Москва
Ресторан «Долина 5165» и магазин Sokolov теперь доступны посетителям ТРЦ Avenue Sever
Сегодня — 30 апреля, четверг / Москва
"Новый флагманский магазин под названием «Флаувау» открыл свои двери на Мясницкой улице"
Сегодня — 30 апреля, четверг / Москва
"Уровень вакансии на складах в Московском регионе достиг 5,4% из-за увеличения предложений по субаренде"
Сегодня — 30 апреля, четверг / Москва
"Прогнозируется незначительный прирост числа туристов в первом квартале 2026 года - всего 2,8%"
Сегодня — 30 апреля, четверг / Москва
Компания "Ориентир" планирует вложить до 150 млрд рублей в расширение бизнеса и развитие новых секторов.
Сегодня — 30 апреля, четверг / Москва
"Завершено строительство наземной парковки на 400 автомобильных мест в парке «Ривер Парк Коломенское»"
Сегодня — 30 апреля, четверг / Москва
Скорось открытия новых магазинов «Лэтуаль» снизится - 150 точек закроются к 2026 году.
Сегодня — 30 апреля, четверг / Москва
Смайл-бар сети "Белая точка" теперь доступен посетителям ТЦ "Левел Причальный"
Вчера — 29 апреля, среда / Москва
Московский цех открыл производство 3D-принтеров для металлической печати.
Вчера — 29 апреля, среда / Москва
БМ-банк завершил продажу большей части площадей в ТЦ «Весна» на Новом Арбате.
Вчера — 29 апреля, среда / Москва
Перефразированное название: "Сеть магазинов 'Жизньмарт' возобновляет свою деятельность в Челябинске"
Вчера — 29 апреля, среда / Санкт-Петербург
Сервисный офис «Практик» начал свою работу на Октябрьской набережной в Санкт-Петербурге.
Вчера — 29 апреля, среда / Санкт-Петербург
Строительство складских помещений в Санкт-Петербурге и Ленинградской области увеличилось в 2,5 раза.
Вчера — 29 апреля, среда / Москва
Москва увеличила объем строительства в рамках программы МПТ до 9,5 миллионов квадратных метров
Вчера — 29 апреля, среда / Санкт-Петербург
Соседский центр "ЖИВИ Клуб" открыл свои двери в Новоселье
Вчера — 29 апреля, среда / Москва
"Завершено строительство пятиэтажной наземной парковки в районе Нагатинский Затон"
Вчера — 29 апреля, среда / Санкт-Петербург
Рекордный уровень строительства складов зафиксирован в Санкт-Петербурге и Ленинградской области
Вчера — 29 апреля, среда / Москва
Аренда складов в Москве снизилась на 25%