Купить ПСН 401 м² в Ромашки

ID 1777943
Цена
57 035 540 ₽
Ставка
142 233 ₽ / м²
Площадь
401 м²
Этаж
2 из 18
ИФНС
4706
агентство недвижимости
Ленинградская обл, Всеволожский р-н, г Мурино, ул Шоссе в Лаврики, д 93 На карте
Девяткино
10 мин
Описание
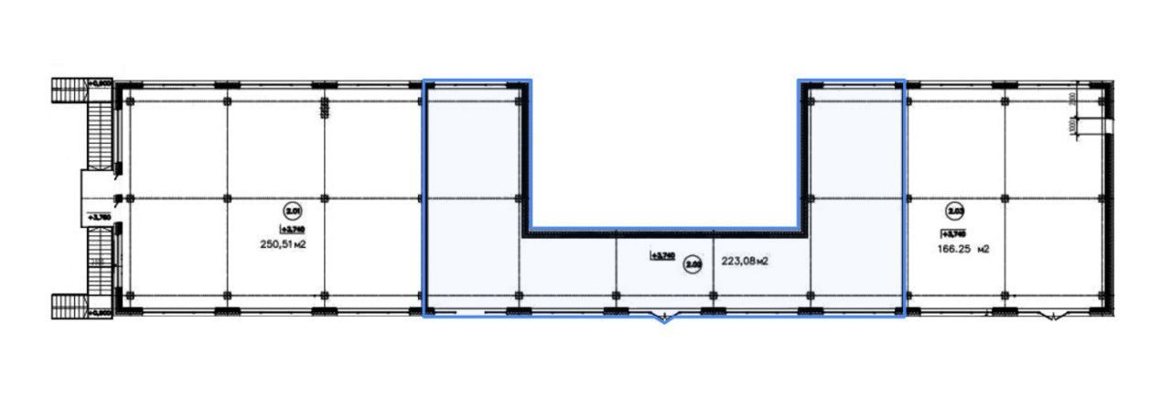
ПЛАТИМ АГЕНТАМ. Входим в ассоциацию профессионалов коммерческой недвижимости КОКОН. Жилой комплекс Ромашки строится в посёлке Мурино, между рекой Охта и Шоссе в Лаврики. Состоит из двух корпусов. На первом этаже предусмотрены коммерческие помещения. Отличная транспортная доступность- всего 10 минут на маршрутке или 20 минут пешком до м. Девяткино. Описание помещения: Блок двух помещений 235.2 м2, 166.3 м2 с панорамными окнами.
Оснащены всеми необходимыми коммуникациями и системами.
В каждом помещении отдельный вход и собственные санузлы.
Электрическая мощность 10 кВт. Отдельный вход. Этаж: 2. Планировка: открытая ( open space ). Под чистовую отделку. Высота потолка: 3.17м. Тип налогообложения: УСН. Налоговая: 21. Лифты: Есть. Вентиляция: Приточно-вытяжная. Кондиционирование: Сплит-системы. Безопасность: Контроль доступа, Система пожаротушений, Видеонаблюдение. Провайдеры: . Парковка: Наземная. Лот 82798-133
Расположение
Ленинградская обл, Всеволожский р-н, г Мурино, ул Шоссе в Лаврики, д 93
Девяткино
10 мин
Технические характеристики
Параметры
Инженерия
кондиционер, вентиляция
Подать заявку
Отдел аренды и продаж
+7 931 109-43-28
Похожие объявления
ID 1774583
ID 1774911
ID 1774584
ID 1292412
ID 1777810
ID 1777809
Новость дня
Развитие рынка курортной недвижимости в Анапе и Крыму
Анапа стала лидером по росту цен на недвижимость в южных регионах за первый квартал 2026 года, в то время как Сочи теряет свои позиции из-за снижения предложения и незначительных изменений в ценах за квадратный метр.
Все новости
Сегодня — 29 апреля, среда / Санкт-Петербург
Соседский центр "ЖИВИ Клуб" открыл свои двери в Новоселье
Сегодня — 29 апреля, среда / Москва
Аренда складов в Москве снизилась на 25%