Описание
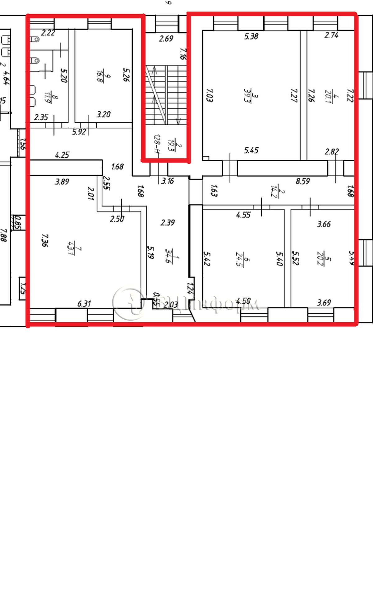
Предлагается в аренду блок офисных помещений, общей площадью 224.7 м.кв.
Расположен на втором этаже БЦ класса В. Отдельный вход, изолированный от других арендаторов.
Кабинетная планировка, состоит из 6 кабинетов, санузел.
Помещения оснащены системой кондиционирования, приточно-вытяжной вентиляцией и пожарной сигнализацией.
Выполнена качественная офисная отделка. В хорошем состоянии.
Станция метро – Адмиралтейская находится в 950 метрах от БЦ, развитая административно-деловая инфраструктура, в шаговой доступности памятники исторического и культурного наследия, близость остановок общественного транспорта, большой выбор кафе/ресторанов в бизнес-центре и в непосредственной близости от него.
Арендная ставка включает НДС и КУ. Отдельно оплачиваются: э/энергия согласно показаниям счетчика, холодоснабжение, тех. обслуживание систем АУПС и СОУЭ, телефония/интернет, уборка, парковка.
Готово к въезду. Договор аренды напрямую с собственником. Без скрытых комиссий и платежей.
Расположен на втором этаже БЦ класса В. Отдельный вход, изолированный от других арендаторов.
Кабинетная планировка, состоит из 6 кабинетов, санузел.
Помещения оснащены системой кондиционирования, приточно-вытяжной вентиляцией и пожарной сигнализацией.
Выполнена качественная офисная отделка. В хорошем состоянии.
Станция метро – Адмиралтейская находится в 950 метрах от БЦ, развитая административно-деловая инфраструктура, в шаговой доступности памятники исторического и культурного наследия, близость остановок общественного транспорта, большой выбор кафе/ресторанов в бизнес-центре и в непосредственной близости от него.
Арендная ставка включает НДС и КУ. Отдельно оплачиваются: э/энергия согласно показаниям счетчика, холодоснабжение, тех. обслуживание систем АУПС и СОУЭ, телефония/интернет, уборка, парковка.
Готово к въезду. Договор аренды напрямую с собственником. Без скрытых комиссий и платежей.
Расположение
г Санкт-Петербург, б-р Конногвардейский, д 4
Спасская
—
16 мин
Адмиралтейская
—
12 мин
Садовая
—
15 мин
Технические характеристики
Параметры
Электричество
есть
Телекоммуникации
интернет
Охрана
есть
Отопление
есть
Инженерия
кондиционер, вентиляция, пожарная сигнализация
Статус владельца объявления
агентство
Класс
b
Новость дня
Все новости
Вчера — 29 апреля, среда / Москва
Московский цех открыл производство 3D-принтеров для металлической печати.
Вчера — 29 апреля, среда / Москва
БМ-банк завершил продажу большей части площадей в ТЦ «Весна» на Новом Арбате.
Вчера — 29 апреля, среда / Москва
Перефразированное название: "Сеть магазинов 'Жизньмарт' возобновляет свою деятельность в Челябинске"
Вчера — 29 апреля, среда / Санкт-Петербург
Сервисный офис «Практик» начал свою работу на Октябрьской набережной в Санкт-Петербурге.
Вчера — 29 апреля, среда / Санкт-Петербург
Строительство складских помещений в Санкт-Петербурге и Ленинградской области увеличилось в 2,5 раза.
Вчера — 29 апреля, среда / Москва
Москва увеличила объем строительства в рамках программы МПТ до 9,5 миллионов квадратных метров
Вчера — 29 апреля, среда / Санкт-Петербург
Соседский центр "ЖИВИ Клуб" открыл свои двери в Новоселье
Вчера — 29 апреля, среда / Москва
"Завершено строительство пятиэтажной наземной парковки в районе Нагатинский Затон"
Вчера — 29 апреля, среда / Санкт-Петербург
Рекордный уровень строительства складов зафиксирован в Санкт-Петербурге и Ленинградской области
Вчера — 29 апреля, среда / Москва
Аренда складов в Москве снизилась на 25%
28 апреля, вторник / Москва
"Появление двух новых брендов на российском рынке в начале 2026 года"
28 апреля, вторник / Москва
27-этажный бизнес-центр класса А в Коммунарке завершает процесс утверждения своего архитектурного дизайна
28 апреля, вторник / Москва
Перефразированное название статьи: "Открытие первого флагманского магазина Lumique в «Авиапарке»"
28 апреля, вторник / Москва
"Подольская фабрика офсетной печати выставляет на приватизацию 49% своих акций"
28 апреля, вторник / Москва
Самострои в ЮВАО: площадь почти 4 тыс. кв. м за первый квартал
28 апреля, вторник / Москва
Иск на 11,7 млрд рублей подан банком «Санкт-Петербург» к структуре «Гранели»
28 апреля, вторник / Москва
"«Яндекс Фабрика» запускает цепь офлайн-магазинов в Москве"
28 апреля, вторник / Москва
Детская сеть магазинов "Кораблик" столкнулась с финансовыми трудностями
28 апреля, вторник / Москва
Снижение загрузки премиум отелей Москвы в первом квартале до 69,4%
28 апреля, вторник / Крым
"Продается комплекс солнечных электростанций на полуострове Крым"