Купить дом 150 м² в гп Павлово
ID 1320582
Цена
12 500 000 ₽
Ставка
83 333 ₽ / м²
Площадь
150 м²
агентство недвижимости
Ленинградская обл, Кировский р-н, гп Павлово, пер Липовый, д 22
На карте
Рыбацкое
—
40 мин
Описание
1697453 Продается добротный, основательный жилой дом очень хорошего качества в экологически чистом месте.
У этого дома есть два выгодных отличия, от всех других продаваемых домов, этой ценовой категории:
Первое - это очень высокое качество постройки. Дом строили для себя, с большим запасом прочности, и это видно в каждом элементе постройки. Фундамент - монолитная плита 50 см, хотя достаточно и 20. Стены - газобетон с армопоясами толщиной 15 см. Отделка фасада - кирпич с вент зазором. Кровля - металлочерепица по контробрешетке.
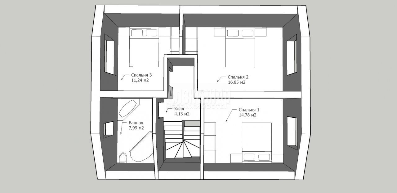
Второе - это очень удачная планировка. Несмотря на небольшие размеры дома, в нем очень много пространства. Это стало возможно благодаря тому, что внутри нет неиспользуемых помещений. Все внутреннее пространство выверено и просчитано.
В доме сделана система отопления. На первом этаже - теплые полы с водяным отоплением. Второй этаж - радиаторы с теплоносителем. Так же разведена вся электрика. В каждое помещение проведены трассы для кондиционеров. установлена станция биологической очистки. Фактически осталось просто сделать отделку и можно заезжать.
Участок на котором расположен дом очень светлый, правильной квадратной формы, высокий и сухой. Сделан дренаж на всем участке. Выложена брусчатка вокруг и перед домом. Весь остальной участок засеян газоном. Высажены много туй.
Поселок, где находится дом, удивительно удачно расположен. Здесь есть все для комфортной и размеренной жизни, и в то же время можно быстро и удобно добраться до Санкт-Петербурга. Дом расположен буквально в ста метрах от соснового леса, где летом много грибов и ягод, а зимой проложена лыжня. Совсем рядом находятся место, где сходятся две реки, Мга и Нева. Это просто мечта для людей любящих рыбалку, или прогуливаться у воды. В пятистах метрах от дома есть спуск для лодки. Так же в поселке есть школа, детский сад, много сетевых магазинов. Автобусная остановка находится в трех минутах пешком от дома. Так же можно добраться до СПБ на электричке. Больше информации на нашем сайте
У этого дома есть два выгодных отличия, от всех других продаваемых домов, этой ценовой категории:
Первое - это очень высокое качество постройки. Дом строили для себя, с большим запасом прочности, и это видно в каждом элементе постройки. Фундамент - монолитная плита 50 см, хотя достаточно и 20. Стены - газобетон с армопоясами толщиной 15 см. Отделка фасада - кирпич с вент зазором. Кровля - металлочерепица по контробрешетке.
Второе - это очень удачная планировка. Несмотря на небольшие размеры дома, в нем очень много пространства. Это стало возможно благодаря тому, что внутри нет неиспользуемых помещений. Все внутреннее пространство выверено и просчитано.
В доме сделана система отопления. На первом этаже - теплые полы с водяным отоплением. Второй этаж - радиаторы с теплоносителем. Так же разведена вся электрика. В каждое помещение проведены трассы для кондиционеров. установлена станция биологической очистки. Фактически осталось просто сделать отделку и можно заезжать.
Участок на котором расположен дом очень светлый, правильной квадратной формы, высокий и сухой. Сделан дренаж на всем участке. Выложена брусчатка вокруг и перед домом. Весь остальной участок засеян газоном. Высажены много туй.
Поселок, где находится дом, удивительно удачно расположен. Здесь есть все для комфортной и размеренной жизни, и в то же время можно быстро и удобно добраться до Санкт-Петербурга. Дом расположен буквально в ста метрах от соснового леса, где летом много грибов и ягод, а зимой проложена лыжня. Совсем рядом находятся место, где сходятся две реки, Мга и Нева. Это просто мечта для людей любящих рыбалку, или прогуливаться у воды. В пятистах метрах от дома есть спуск для лодки. Так же в поселке есть школа, детский сад, много сетевых магазинов. Автобусная остановка находится в трех минутах пешком от дома. Так же можно добраться до СПБ на электричке. Больше информации на нашем сайте
Расположение
Ленинградская обл, Кировский р-н, гп Павлово, пер Липовый, д 22
Рыбацкое
—
40 мин
Технические характеристики
Параметры
Тип сделки
прямая продажа
Водоснабжение
есть
Электричество
есть
Канализация
есть
Газ
есть
Телекоммуникации
интернет
Отопление
есть
Новость дня
Все новости
Сегодня — 30 апреля, четверг / Ставропольский
В Кисловодске начался проект строительства инвестиционного отеля "Реликт"
Сегодня — 30 апреля, четверг / Москва
Ресторан «Долина 5165» и магазин Sokolov теперь доступны посетителям ТРЦ Avenue Sever
Сегодня — 30 апреля, четверг / Москва
"Новый флагманский магазин под названием «Флаувау» открыл свои двери на Мясницкой улице"
Сегодня — 30 апреля, четверг / Москва
"Уровень вакансии на складах в Московском регионе достиг 5,4% из-за увеличения предложений по субаренде"
Сегодня — 30 апреля, четверг / Москва
"Прогнозируется незначительный прирост числа туристов в первом квартале 2026 года - всего 2,8%"
Сегодня — 30 апреля, четверг / Москва
Компания "Ориентир" планирует вложить до 150 млрд рублей в расширение бизнеса и развитие новых секторов.
Сегодня — 30 апреля, четверг / Москва
"Завершено строительство наземной парковки на 400 автомобильных мест в парке «Ривер Парк Коломенское»"
Сегодня — 30 апреля, четверг / Москва
Скорось открытия новых магазинов «Лэтуаль» снизится - 150 точек закроются к 2026 году.
Сегодня — 30 апреля, четверг / Москва
Смайл-бар сети "Белая точка" теперь доступен посетителям ТЦ "Левел Причальный"
Вчера — 29 апреля, среда / Москва
Московский цех открыл производство 3D-принтеров для металлической печати.
Вчера — 29 апреля, среда / Москва
БМ-банк завершил продажу большей части площадей в ТЦ «Весна» на Новом Арбате.
Вчера — 29 апреля, среда / Москва
Перефразированное название: "Сеть магазинов 'Жизньмарт' возобновляет свою деятельность в Челябинске"
Вчера — 29 апреля, среда / Санкт-Петербург
Сервисный офис «Практик» начал свою работу на Октябрьской набережной в Санкт-Петербурге.
Вчера — 29 апреля, среда / Санкт-Петербург
Строительство складских помещений в Санкт-Петербурге и Ленинградской области увеличилось в 2,5 раза.
Вчера — 29 апреля, среда / Москва
Москва увеличила объем строительства в рамках программы МПТ до 9,5 миллионов квадратных метров
Вчера — 29 апреля, среда / Санкт-Петербург
Соседский центр "ЖИВИ Клуб" открыл свои двери в Новоселье
Вчера — 29 апреля, среда / Москва
"Завершено строительство пятиэтажной наземной парковки в районе Нагатинский Затон"
Вчера — 29 апреля, среда / Санкт-Петербург
Рекордный уровень строительства складов зафиксирован в Санкт-Петербурге и Ленинградской области
Вчера — 29 апреля, среда / Москва
Аренда складов в Москве снизилась на 25%
28 апреля, вторник / Москва
"Появление двух новых брендов на российском рынке в начале 2026 года"