Главная
Аренда помещений свободного назначения в Санкт-Петербурге и ЛО
ПСН 37 м² в Центр Делового Сотрудничества 'AVTOR'
Описание
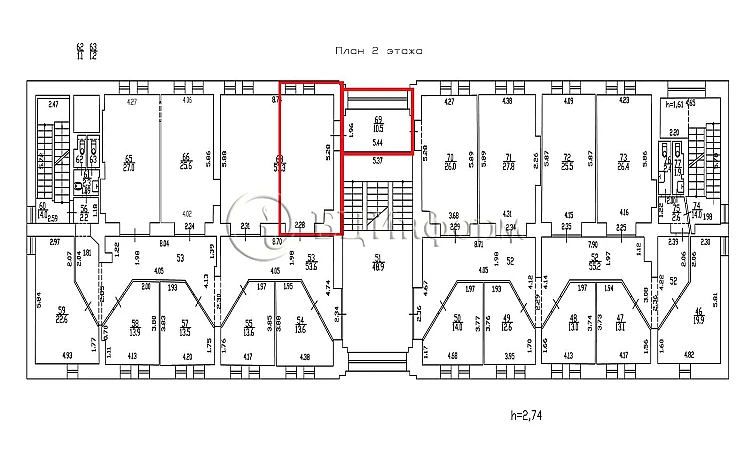
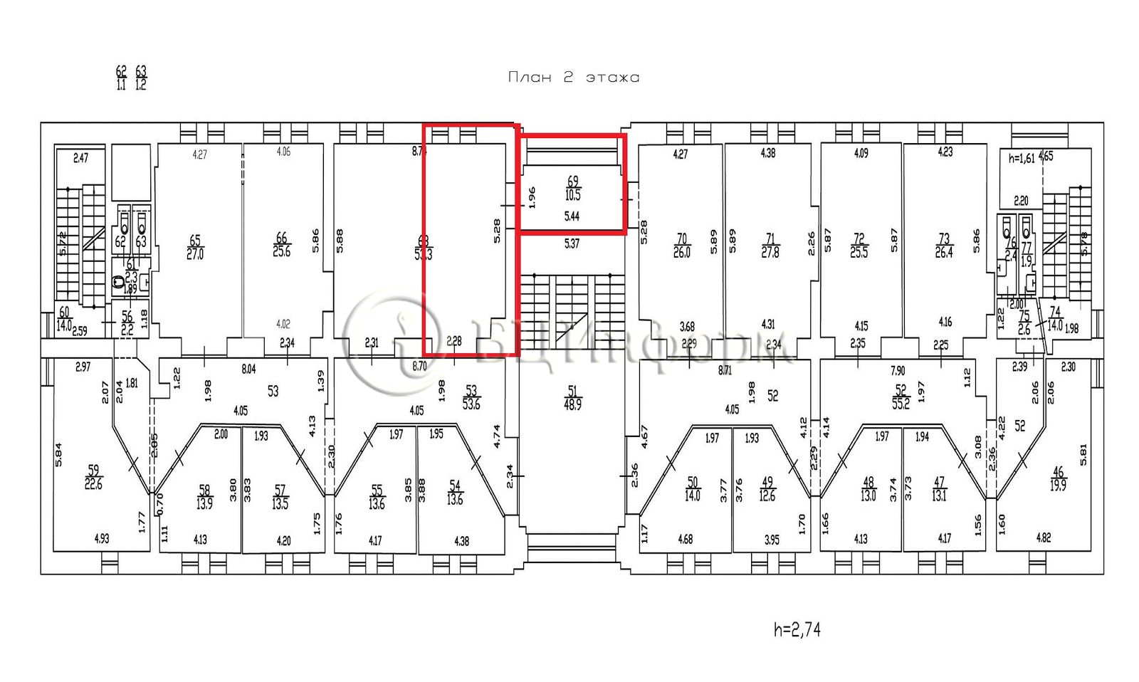
В аренду предлагается помещение свободного назначения (офисное/торговое + помещение под склад, под пункт выдачи), площадью 37 м.кв.
Расположено на втором этаже.
Две смежные комнаты (26.5 м.кв. + склад 10.5 м.кв.) В хорошем состоянии. Установлен кондиционер.
Выполнена стандартная офисная отделка: потолок "Армстронг", стены - покраска, напольное покрытие - плитка.
При необходимости предоставляется юридический адрес и рекламное место на фасаде здания.
Территория бизнес центра с развитой инфраструктурой.
В пешей доступности (4 минуты) от станции метро "Садовая", "Сенная", "Спасская".
Готово к въезду с 1 июля. Договор заключается напрямую с собственником. Без скрытых комиссий и платежей.
Расположено на втором этаже.
Две смежные комнаты (26.5 м.кв. + склад 10.5 м.кв.) В хорошем состоянии. Установлен кондиционер.
Выполнена стандартная офисная отделка: потолок "Армстронг", стены - покраска, напольное покрытие - плитка.
При необходимости предоставляется юридический адрес и рекламное место на фасаде здания.
Территория бизнес центра с развитой инфраструктурой.
В пешей доступности (4 минуты) от станции метро "Садовая", "Сенная", "Спасская".
Готово к въезду с 1 июля. Договор заключается напрямую с собственником. Без скрытых комиссий и платежей.
Расположение
г Санкт-Петербург, ул Ефимова, д 3АД
Сенная площадь
—
2 мин
Спасская
—
1 мин
Садовая
—
2 мин
Технические характеристики
Параметры
Электричество
есть
Телекоммуникации
интернет
Отопление
есть
Инженерия
кондиционер, пожарная сигнализация
Статус владельца объявления
агентство
Класс
b
Новость дня
Расширение возможностей для B2B-клиентов: Avito вводит новые услуги для строительства складов
На платформе Авито теперь доступна категория "Коммерческое строительство" в сегменте услуг, предлагающая широкий выбор специализированных работ и возведение объектов "под ключ" для бизнеса, что упрощает поиск подрядчиков и субподрядчиков для коммерческих проектов.
Все новости
30 апреля, четверг / Москва
"Бумеранг Капитал" увеличил свою долю в сети кафе-пекарен "Цех 85" до 50%
30 апреля, четверг / Ставропольский
В Кисловодске начался проект строительства инвестиционного отеля "Реликт"
30 апреля, четверг / Москва
Ресторан «Долина 5165» и магазин Sokolov теперь доступны посетителям ТРЦ Avenue Sever
30 апреля, четверг / Москва
"Новый флагманский магазин под названием «Флаувау» открыл свои двери на Мясницкой улице"
30 апреля, четверг / Москва
"Уровень вакансии на складах в Московском регионе достиг 5,4% из-за увеличения предложений по субаренде"
30 апреля, четверг / Москва
"Прогнозируется незначительный прирост числа туристов в первом квартале 2026 года - всего 2,8%"
30 апреля, четверг / Москва
Компания "Ориентир" планирует вложить до 150 млрд рублей в расширение бизнеса и развитие новых секторов.
30 апреля, четверг / Москва
"Завершено строительство наземной парковки на 400 автомобильных мест в парке «Ривер Парк Коломенское»"
30 апреля, четверг / Москва
Скорось открытия новых магазинов «Лэтуаль» снизится - 150 точек закроются к 2026 году.
30 апреля, четверг / Москва
Смайл-бар сети "Белая точка" теперь доступен посетителям ТЦ "Левел Причальный"
29 апреля, среда / Москва
Московский цех открыл производство 3D-принтеров для металлической печати.
29 апреля, среда / Москва
БМ-банк завершил продажу большей части площадей в ТЦ «Весна» на Новом Арбате.
29 апреля, среда / Москва
Перефразированное название: "Сеть магазинов 'Жизньмарт' возобновляет свою деятельность в Челябинске"
29 апреля, среда / Санкт-Петербург
Сервисный офис «Практик» начал свою работу на Октябрьской набережной в Санкт-Петербурге.
29 апреля, среда / Санкт-Петербург
Строительство складских помещений в Санкт-Петербурге и Ленинградской области увеличилось в 2,5 раза.
29 апреля, среда / Москва
Москва увеличила объем строительства в рамках программы МПТ до 9,5 миллионов квадратных метров
29 апреля, среда / Санкт-Петербург
Соседский центр "ЖИВИ Клуб" открыл свои двери в Новоселье
29 апреля, среда / Москва
"Завершено строительство пятиэтажной наземной парковки в районе Нагатинский Затон"
29 апреля, среда / Санкт-Петербург
Рекордный уровень строительства складов зафиксирован в Санкт-Петербурге и Ленинградской области
29 апреля, среда / Москва
Аренда складов в Москве снизилась на 25%