Описание
ID: 832598
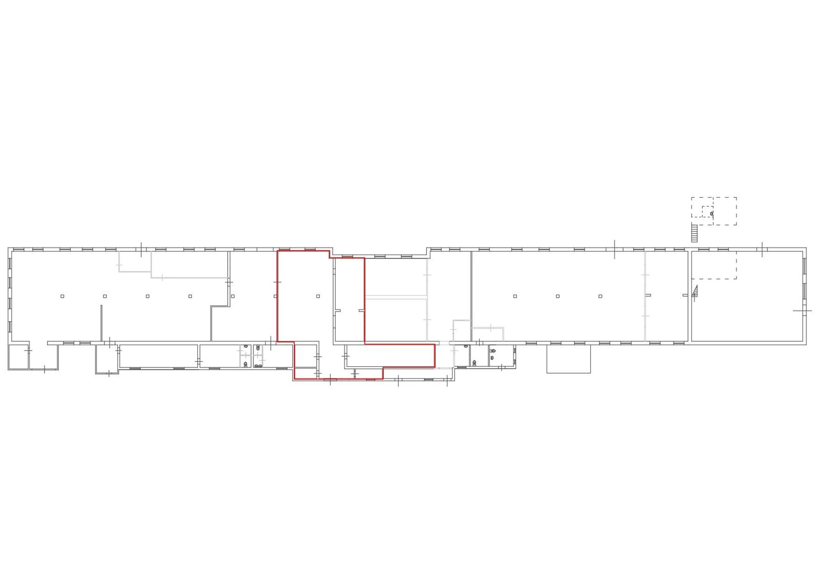
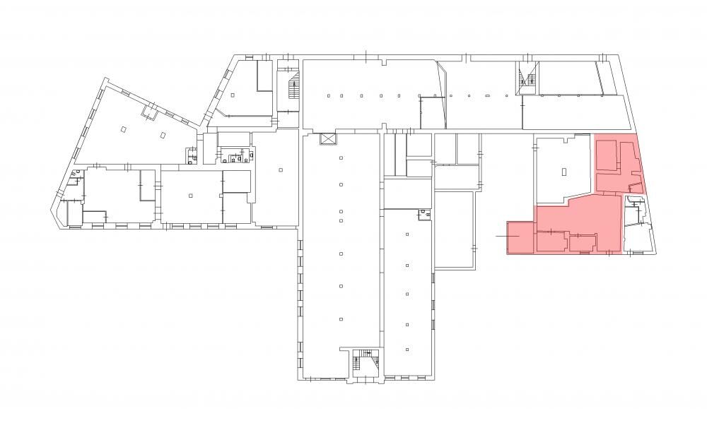
Предлагается в аренду нежилое помещение - уникальное пространство на первом этаже по адресу: пер. Красногвардейский, дом 23 - бывшие производственные помещения с потенциалом для трансформации и перепланировки. Свободный доступ.
1 этаж. Нежилое здание. Возможность организации адаптации под специфические требования. Доступ: 2 отдельных входа — удобно для организации погрузочно разгрузочных работ. К помещению имеется удобный подъезд, что упрощает разгрузку и погрузку. Рядом расположена стоянка на несколько машино-мест.
Собственный санузел!
Электрическая мощность не ограничена (возможно увеличение до 200 кВт); что связано с предыдущим промышленным назначением здания. Объект оборудован всеми необходимыми коммуникациями: водоснабжением, канализацией, теплоснабжением и электроснабжением.
Объект находится в непосредственной близости от станции метро Черная речка. Расположение в Приморском районе рядом с современным густонаселенным ЖК Черная речка - ваша выгода по трафику и транспортной доступности.
Возможен круглосуточный режим работы.
Объект предлагается в аренду. Остальные условия сотрудничества и стоимость обсуждаются отдельно.
Предлагается в аренду нежилое помещение - уникальное пространство на первом этаже по адресу: пер. Красногвардейский, дом 23 - бывшие производственные помещения с потенциалом для трансформации и перепланировки. Свободный доступ.
1 этаж. Нежилое здание. Возможность организации адаптации под специфические требования. Доступ: 2 отдельных входа — удобно для организации погрузочно разгрузочных работ. К помещению имеется удобный подъезд, что упрощает разгрузку и погрузку. Рядом расположена стоянка на несколько машино-мест.
Собственный санузел!
Электрическая мощность не ограничена (возможно увеличение до 200 кВт); что связано с предыдущим промышленным назначением здания. Объект оборудован всеми необходимыми коммуникациями: водоснабжением, канализацией, теплоснабжением и электроснабжением.
Объект находится в непосредственной близости от станции метро Черная речка. Расположение в Приморском районе рядом с современным густонаселенным ЖК Черная речка - ваша выгода по трафику и транспортной доступности.
Возможен круглосуточный режим работы.
Объект предлагается в аренду. Остальные условия сотрудничества и стоимость обсуждаются отдельно.
Расположение
г Санкт-Петербург, пер Красногвардейский, д 23
Чёрная речка
Технические характеристики
Новость дня
Все новости
Сегодня — 30 апреля, четверг / Москва
"Уровень вакансии на складах в Московском регионе достиг 5,4% из-за увеличения предложений по субаренде"
Сегодня — 30 апреля, четверг / Москва
"Прогнозируется незначительный прирост числа туристов в первом квартале 2026 года - всего 2,8%"
Сегодня — 30 апреля, четверг / Москва
"Завершено строительство наземной парковки на 400 автомобильных мест в парке «Ривер Парк Коломенское»"
Сегодня — 30 апреля, четверг / Москва
Скорось открытия новых магазинов «Лэтуаль» снизится - 150 точек закроются к 2026 году.
Сегодня — 30 апреля, четверг / Москва
Смайл-бар сети "Белая точка" теперь доступен посетителям ТЦ "Левел Причальный"
Вчера — 29 апреля, среда / Москва
Московский цех открыл производство 3D-принтеров для металлической печати.
Вчера — 29 апреля, среда / Москва
БМ-банк завершил продажу большей части площадей в ТЦ «Весна» на Новом Арбате.
Вчера — 29 апреля, среда / Москва
Перефразированное название: "Сеть магазинов 'Жизньмарт' возобновляет свою деятельность в Челябинске"
Вчера — 29 апреля, среда / Санкт-Петербург
Сервисный офис «Практик» начал свою работу на Октябрьской набережной в Санкт-Петербурге.
Вчера — 29 апреля, среда / Санкт-Петербург
Строительство складских помещений в Санкт-Петербурге и Ленинградской области увеличилось в 2,5 раза.
Вчера — 29 апреля, среда / Москва
Москва увеличила объем строительства в рамках программы МПТ до 9,5 миллионов квадратных метров
Вчера — 29 апреля, среда / Санкт-Петербург
Соседский центр "ЖИВИ Клуб" открыл свои двери в Новоселье
Вчера — 29 апреля, среда / Москва
"Завершено строительство пятиэтажной наземной парковки в районе Нагатинский Затон"
Вчера — 29 апреля, среда / Санкт-Петербург
Рекордный уровень строительства складов зафиксирован в Санкт-Петербурге и Ленинградской области
Вчера — 29 апреля, среда / Москва
Аренда складов в Москве снизилась на 25%
28 апреля, вторник / Москва
"Появление двух новых брендов на российском рынке в начале 2026 года"
28 апреля, вторник / Москва
27-этажный бизнес-центр класса А в Коммунарке завершает процесс утверждения своего архитектурного дизайна
28 апреля, вторник / Москва
Перефразированное название статьи: "Открытие первого флагманского магазина Lumique в «Авиапарке»"
28 апреля, вторник / Москва
"Подольская фабрика офсетной печати выставляет на приватизацию 49% своих акций"
28 апреля, вторник / Москва
Самострои в ЮВАО: площадь почти 4 тыс. кв. м за первый квартал