Описание
Продается через электронные торги на площадке ЭТП ГПБ Индивидуальный жило дом площадью 500,2 кв.м., расположенный по адресу:
ЛО, Выборгский район, МО "Первомайское сельское поселение", пос. Ленинское, улица Мира, д.10
Год построки: 2019
Кадастровый номер: 47:01:1704003:396
Дом распложен на земельном участке площадью 3022 +/- 38 кв.м.
Категория земель: Земли населенных пунктов
Виды разрешенного использования: под строительство малоэтажной коттеджной застройки.
Кадастровый номер: 47:01:1704003:80
Характеристики и описание объекта
Жилой дом:
Цоколь здания облицован путиловским камнем; Горизонтальная гидроизоляция стен - цементно-песчаный раствор 1:2, толщиной 35 мм с водостойкими добавками из жидкого стекла;
Наружные стены 3-х слойные - кирпич пустотелый строительный, минераловатные плиты - 75 мм, воздушная прослойка 25 мм, лицевой кирпич пустотелый;
Внутренние перегородки - гипсобетонные, пазогребные, толщиной 100 мм;
Кровля - мягкая черепица по деревянной обрешётке;
Этажность: 2, мансарда
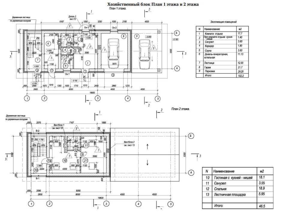
Хозяйственны блок:
Цоколь здания облицован искусственным камнем;
Горизонтальная гидроизоляция стен - цементно-песчаный раствор 1:2, толщиной 35 мм с водостойкими добавками из жидкого стекла;
Наружные стены 3-х слойные - кирпич пустотелый строительный, минераловатные плиты - 80 мм, воздушная прослойка 20 мм, лицевой кирпич пустотелый;
Внутренние перегородки - гипсобетонные, пазогребные, толщиной 100 мм;
Кровля - гонтовые плитки;
Этажность: 2 [#8208001#]
ЛО, Выборгский район, МО "Первомайское сельское поселение", пос. Ленинское, улица Мира, д.10
Год построки: 2019
Кадастровый номер: 47:01:1704003:396
Дом распложен на земельном участке площадью 3022 +/- 38 кв.м.
Категория земель: Земли населенных пунктов
Виды разрешенного использования: под строительство малоэтажной коттеджной застройки.
Кадастровый номер: 47:01:1704003:80
Характеристики и описание объекта
Жилой дом:
Цоколь здания облицован путиловским камнем; Горизонтальная гидроизоляция стен - цементно-песчаный раствор 1:2, толщиной 35 мм с водостойкими добавками из жидкого стекла;
Наружные стены 3-х слойные - кирпич пустотелый строительный, минераловатные плиты - 75 мм, воздушная прослойка 25 мм, лицевой кирпич пустотелый;
Внутренние перегородки - гипсобетонные, пазогребные, толщиной 100 мм;
Кровля - мягкая черепица по деревянной обрешётке;
Этажность: 2, мансарда
Хозяйственны блок:
Цоколь здания облицован искусственным камнем;
Горизонтальная гидроизоляция стен - цементно-песчаный раствор 1:2, толщиной 35 мм с водостойкими добавками из жидкого стекла;
Наружные стены 3-х слойные - кирпич пустотелый строительный, минераловатные плиты - 80 мм, воздушная прослойка 20 мм, лицевой кирпич пустотелый;
Внутренние перегородки - гипсобетонные, пазогребные, толщиной 100 мм;
Кровля - гонтовые плитки;
Этажность: 2 [#8208001#]
Расположение
Ленинградская обл, г Выборг, ул Мира, д 10
Технические характеристики
Параметры
Тип здания
кирпичный
Статус владельца объявления
агрегатор
Новость дня
Расширение возможностей для B2B-клиентов: Avito вводит новые услуги для строительства складов
На платформе Авито теперь доступна категория "Коммерческое строительство" в сегменте услуг, предлагающая широкий выбор специализированных работ и возведение объектов "под ключ" для бизнеса, что упрощает поиск подрядчиков и субподрядчиков для коммерческих проектов.
Все новости
Сегодня — 30 апреля, четверг / Москва
"Бумеранг Капитал" увеличил свою долю в сети кафе-пекарен "Цех 85" до 50%
Сегодня — 30 апреля, четверг / Ставропольский
В Кисловодске начался проект строительства инвестиционного отеля "Реликт"
Сегодня — 30 апреля, четверг / Москва
Ресторан «Долина 5165» и магазин Sokolov теперь доступны посетителям ТРЦ Avenue Sever
Сегодня — 30 апреля, четверг / Москва
"Новый флагманский магазин под названием «Флаувау» открыл свои двери на Мясницкой улице"
Сегодня — 30 апреля, четверг / Москва
"Уровень вакансии на складах в Московском регионе достиг 5,4% из-за увеличения предложений по субаренде"
Сегодня — 30 апреля, четверг / Москва
"Прогнозируется незначительный прирост числа туристов в первом квартале 2026 года - всего 2,8%"
Сегодня — 30 апреля, четверг / Москва
Компания "Ориентир" планирует вложить до 150 млрд рублей в расширение бизнеса и развитие новых секторов.
Сегодня — 30 апреля, четверг / Москва
"Завершено строительство наземной парковки на 400 автомобильных мест в парке «Ривер Парк Коломенское»"
Сегодня — 30 апреля, четверг / Москва
Скорось открытия новых магазинов «Лэтуаль» снизится - 150 точек закроются к 2026 году.
Сегодня — 30 апреля, четверг / Москва
Смайл-бар сети "Белая точка" теперь доступен посетителям ТЦ "Левел Причальный"
Вчера — 29 апреля, среда / Москва
Московский цех открыл производство 3D-принтеров для металлической печати.
Вчера — 29 апреля, среда / Москва
БМ-банк завершил продажу большей части площадей в ТЦ «Весна» на Новом Арбате.
Вчера — 29 апреля, среда / Москва
Перефразированное название: "Сеть магазинов 'Жизньмарт' возобновляет свою деятельность в Челябинске"
Вчера — 29 апреля, среда / Санкт-Петербург
Сервисный офис «Практик» начал свою работу на Октябрьской набережной в Санкт-Петербурге.
Вчера — 29 апреля, среда / Санкт-Петербург
Строительство складских помещений в Санкт-Петербурге и Ленинградской области увеличилось в 2,5 раза.
Вчера — 29 апреля, среда / Москва
Москва увеличила объем строительства в рамках программы МПТ до 9,5 миллионов квадратных метров
Вчера — 29 апреля, среда / Санкт-Петербург
Соседский центр "ЖИВИ Клуб" открыл свои двери в Новоселье
Вчера — 29 апреля, среда / Москва
"Завершено строительство пятиэтажной наземной парковки в районе Нагатинский Затон"
Вчера — 29 апреля, среда / Санкт-Петербург
Рекордный уровень строительства складов зафиксирован в Санкт-Петербурге и Ленинградской области
Вчера — 29 апреля, среда / Москва
Аренда складов в Москве снизилась на 25%