Главная
Аренда офисных помещений в Санкт-Петербурге и ЛО
Офис 146 м² в Деловой комплекс 'Санкт-Петербург Плаза'
Снять офис 146 м² в Деловой комплекс 'Санкт-Петербург Плаза'
ID 1816848
Цена
469 440 ₽/мес
Ставка
38 584 ₽ / м² / год
Площадь
146 м²
Класс
A
Этаж
5 из 21
ИФНС
7806
агентство недвижимости
г Санкт-Петербург, пр-кт Малоохтинский, д 64 литера а
На карте
Площадь Александра Невского-1
—
16 мин
Площадь Александра Невского-2
—
17 мин
Новочеркасская
—
12 мин
Описание
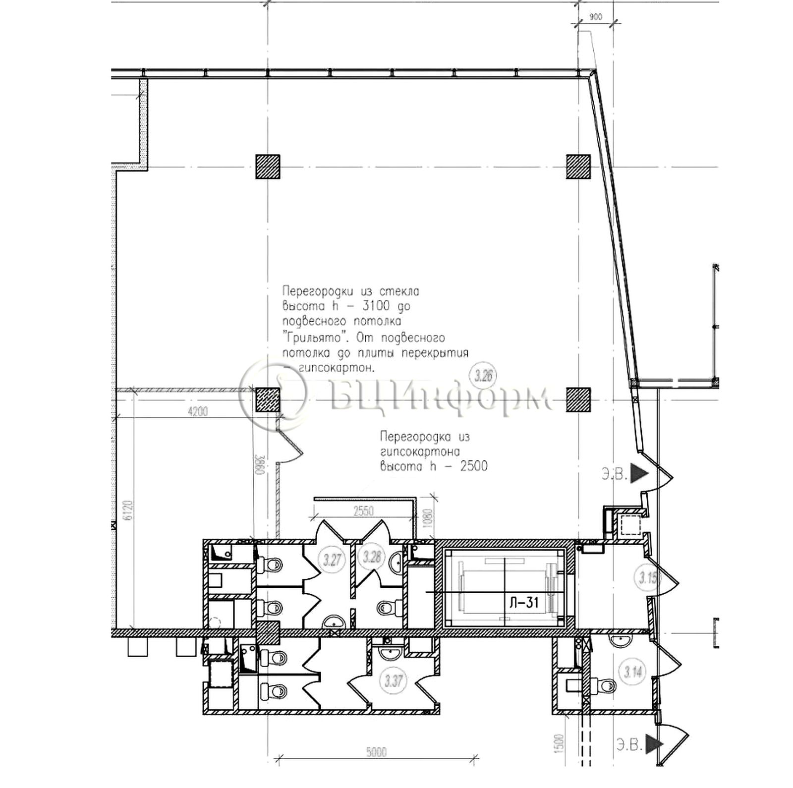
Предлагается вниманию арендатора помещение под офисную деятельность, площадью 146.7 м.кв.
Расположено на пятом этаже.
Смешанная планировка, пять комнат. Панорамное остекление.
Помещение под кухню. Санузел.
В хорошем состоянии. Выполнена качественная отделка, с использованием современных материалов. Зонирование пространства - стеклянными перегородками (с матовым стеклом).
Помещение оснащено системами охранной сигнализации, противопожарной системы, отопления, кондиционирования и приточно-вытяжной вентиляции.
Готово к въезду. Договор аренды напрямую с собственником. Без скрытых комиссий и платежей.
Расположено на пятом этаже.
Смешанная планировка, пять комнат. Панорамное остекление.
Помещение под кухню. Санузел.
В хорошем состоянии. Выполнена качественная отделка, с использованием современных материалов. Зонирование пространства - стеклянными перегородками (с матовым стеклом).
Помещение оснащено системами охранной сигнализации, противопожарной системы, отопления, кондиционирования и приточно-вытяжной вентиляции.
Готово к въезду. Договор аренды напрямую с собственником. Без скрытых комиссий и платежей.
Расположение
г Санкт-Петербург, пр-кт Малоохтинский, д 64 литера а
Площадь Александра Невского-1
—
16 мин
Площадь Александра Невского-2
—
17 мин
Новочеркасская
—
12 мин
Технические характеристики
Параметры
Электричество
есть
Телекоммуникации
интернет
Охрана
есть
Отопление
есть
Инженерия
кондиционер, вентиляция, пожарная сигнализация, лифт
Статус владельца объявления
агентство
Класс
a
Новость дня
Все новости
Сегодня — 30 апреля, четверг / Москва
"Завершено строительство наземной парковки на 400 автомобильных мест в парке «Ривер Парк Коломенское»"
Сегодня — 30 апреля, четверг / Москва
Скорось открытия новых магазинов «Лэтуаль» снизится - 150 точек закроются к 2026 году.
Сегодня — 30 апреля, четверг / Москва
Смайл-бар сети "Белая точка" теперь доступен посетителям ТЦ "Левел Причальный"
Вчера — 29 апреля, среда / Москва
Московский цех открыл производство 3D-принтеров для металлической печати.
Вчера — 29 апреля, среда / Москва
БМ-банк завершил продажу большей части площадей в ТЦ «Весна» на Новом Арбате.
Вчера — 29 апреля, среда / Москва
Перефразированное название: "Сеть магазинов 'Жизньмарт' возобновляет свою деятельность в Челябинске"
Вчера — 29 апреля, среда / Санкт-Петербург
Сервисный офис «Практик» начал свою работу на Октябрьской набережной в Санкт-Петербурге.
Вчера — 29 апреля, среда / Санкт-Петербург
Строительство складских помещений в Санкт-Петербурге и Ленинградской области увеличилось в 2,5 раза.
Вчера — 29 апреля, среда / Москва
Москва увеличила объем строительства в рамках программы МПТ до 9,5 миллионов квадратных метров
Вчера — 29 апреля, среда / Санкт-Петербург
Соседский центр "ЖИВИ Клуб" открыл свои двери в Новоселье
Вчера — 29 апреля, среда / Москва
"Завершено строительство пятиэтажной наземной парковки в районе Нагатинский Затон"
Вчера — 29 апреля, среда / Санкт-Петербург
Рекордный уровень строительства складов зафиксирован в Санкт-Петербурге и Ленинградской области
Вчера — 29 апреля, среда / Москва
Аренда складов в Москве снизилась на 25%
28 апреля, вторник / Москва
"Появление двух новых брендов на российском рынке в начале 2026 года"
28 апреля, вторник / Москва
27-этажный бизнес-центр класса А в Коммунарке завершает процесс утверждения своего архитектурного дизайна
28 апреля, вторник / Москва
Перефразированное название статьи: "Открытие первого флагманского магазина Lumique в «Авиапарке»"
28 апреля, вторник / Москва
"Подольская фабрика офсетной печати выставляет на приватизацию 49% своих акций"
28 апреля, вторник / Москва
Самострои в ЮВАО: площадь почти 4 тыс. кв. м за первый квартал
28 апреля, вторник / Москва
Иск на 11,7 млрд рублей подан банком «Санкт-Петербург» к структуре «Гранели»
28 апреля, вторник / Москва
"«Яндекс Фабрика» запускает цепь офлайн-магазинов в Москве"