Главная
Аренда офисных помещений в Санкт-Петербурге и ЛО
Офис 344 м² в Деловой комплекс 'Санкт-Петербург Плаза'
Снять офис 344 м² в Деловой комплекс 'Санкт-Петербург Плаза'
ID 1816846
Цена
1 102 400 ₽/мес
Ставка
38 456 ₽ / м² / год
Площадь
344 м²
Класс
A
Этаж
2 из 21
ИФНС
7806
агентство недвижимости
г Санкт-Петербург, пр-кт Малоохтинский, д 64 литера а
На карте
Площадь Александра Невского-1
—
16 мин
Площадь Александра Невского-2
—
17 мин
Новочеркасская
—
12 мин
Описание
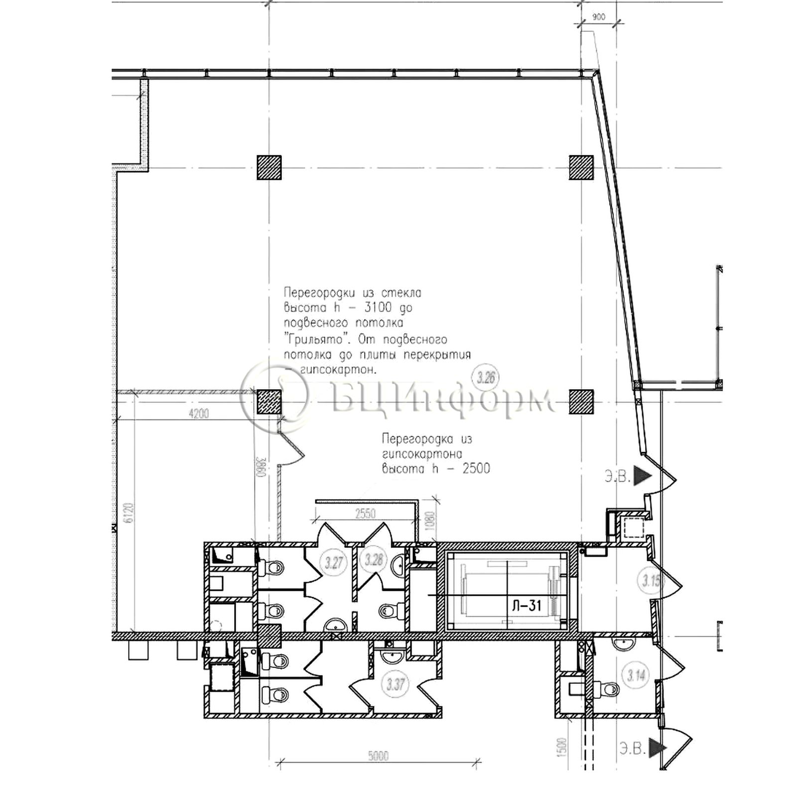
Предлагается вниманию арендатора помещение под офисную деятельность, площадью 344.5 м.кв.
Расположено на втором этаже.
Смешанная планировка, пять комнат. Панорамное остекление.
Подсобные помещения, гардероб, санузел.
В хорошем состоянии. Выполнена качественная отделка, с использованием современных материалов. Зонирование пространства - стеклянными перегородками (с матовым стеклом).
Помещение оснащено системами охранной сигнализации, противопожарной системы, отопления, кондиционирования и приточно-вытяжной вентиляции.
Готово к въезду. Договор аренды напрямую с собственником. Без скрытых комиссий и платежей.
Расположено на втором этаже.
Смешанная планировка, пять комнат. Панорамное остекление.
Подсобные помещения, гардероб, санузел.
В хорошем состоянии. Выполнена качественная отделка, с использованием современных материалов. Зонирование пространства - стеклянными перегородками (с матовым стеклом).
Помещение оснащено системами охранной сигнализации, противопожарной системы, отопления, кондиционирования и приточно-вытяжной вентиляции.
Готово к въезду. Договор аренды напрямую с собственником. Без скрытых комиссий и платежей.
Расположение
г Санкт-Петербург, пр-кт Малоохтинский, д 64 литера а
Площадь Александра Невского-1
—
16 мин
Площадь Александра Невского-2
—
17 мин
Новочеркасская
—
12 мин
Технические характеристики
Параметры
Электричество
есть
Телекоммуникации
интернет
Охрана
есть
Отопление
есть
Инженерия
кондиционер, вентиляция, пожарная сигнализация, лифт
Статус владельца объявления
агентство
Класс
a
Новость дня
Все новости
Вчера — 29 апреля, среда / Москва
Московский цех открыл производство 3D-принтеров для металлической печати.
Вчера — 29 апреля, среда / Москва
БМ-банк завершил продажу большей части площадей в ТЦ «Весна» на Новом Арбате.
Вчера — 29 апреля, среда / Москва
Перефразированное название: "Сеть магазинов 'Жизньмарт' возобновляет свою деятельность в Челябинске"
Вчера — 29 апреля, среда / Санкт-Петербург
Сервисный офис «Практик» начал свою работу на Октябрьской набережной в Санкт-Петербурге.
Вчера — 29 апреля, среда / Санкт-Петербург
Строительство складских помещений в Санкт-Петербурге и Ленинградской области увеличилось в 2,5 раза.
Вчера — 29 апреля, среда / Москва
Москва увеличила объем строительства в рамках программы МПТ до 9,5 миллионов квадратных метров
Вчера — 29 апреля, среда / Санкт-Петербург
Соседский центр "ЖИВИ Клуб" открыл свои двери в Новоселье
Вчера — 29 апреля, среда / Москва
"Завершено строительство пятиэтажной наземной парковки в районе Нагатинский Затон"
Вчера — 29 апреля, среда / Санкт-Петербург
Рекордный уровень строительства складов зафиксирован в Санкт-Петербурге и Ленинградской области
Вчера — 29 апреля, среда / Москва
Аренда складов в Москве снизилась на 25%
28 апреля, вторник / Москва
"Появление двух новых брендов на российском рынке в начале 2026 года"
28 апреля, вторник / Москва
27-этажный бизнес-центр класса А в Коммунарке завершает процесс утверждения своего архитектурного дизайна
28 апреля, вторник / Москва
Перефразированное название статьи: "Открытие первого флагманского магазина Lumique в «Авиапарке»"
28 апреля, вторник / Москва
"Подольская фабрика офсетной печати выставляет на приватизацию 49% своих акций"
28 апреля, вторник / Москва
Самострои в ЮВАО: площадь почти 4 тыс. кв. м за первый квартал
28 апреля, вторник / Москва
Иск на 11,7 млрд рублей подан банком «Санкт-Петербург» к структуре «Гранели»
28 апреля, вторник / Москва
"«Яндекс Фабрика» запускает цепь офлайн-магазинов в Москве"
28 апреля, вторник / Москва
Детская сеть магазинов "Кораблик" столкнулась с финансовыми трудностями
28 апреля, вторник / Москва
Снижение загрузки премиум отелей Москвы в первом квартале до 69,4%
28 апреля, вторник / Крым
"Продается комплекс солнечных электростанций на полуострове Крым"