Главная Купить ПСН в Санкт-Петербурге и ЛО ПСН 670 м² в Южное шоссе, 45к5с1

Купить ПСН 670 м² в Южное шоссе, 45к5с1

ID 1782430
Цена
98 999 999 ₽
Ставка
147 761 ₽ / м²
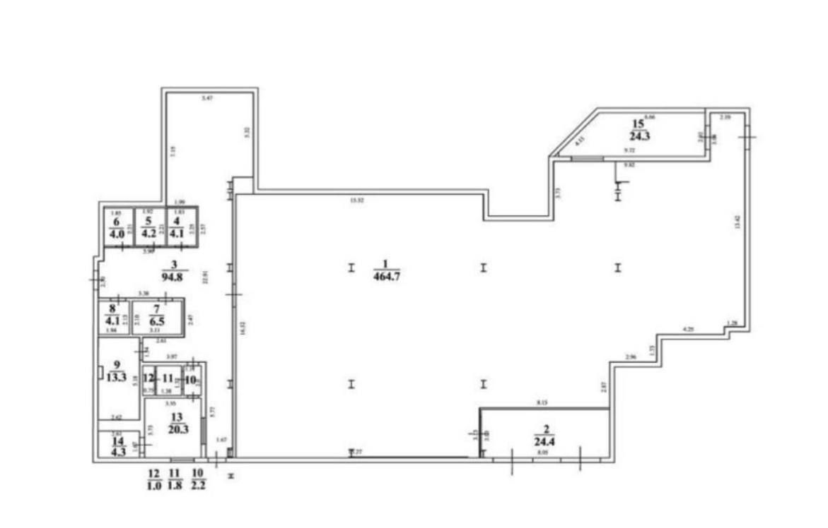
Площадь
670 м²
Этаж
1 из 4
ИФНС
7816
агентство недвижимости
г Санкт-Петербург, ш Южное, д 45 к 5 стр 1 На карте
Международная
25 мин
Ломоносовская
28 мин
Описание
Готовый арендный бизнес (ГАБ). Доходность 13%, окупаемость до 7.86 лет. Здание расположено в Жилом комплексе София. Парковая зона, с водоёмами и прогулочными дорожками. Отличная транспортная доступность. В нескольких минутах ходьбы находится станция метро Проспект Славы. Рядом автобусная и трамвайная остановка. Описание помещения: Отдельный вход. Этаж: 1. Планировка: смешанная. Типовой ремонт. Тип налогообложения: УСН. Налоговая: 27. Лифты: Нет. Вентиляция: . Кондиционирование: . Безопасность: Система пожаротушений. Провайдеры: . Парковка: Наземная. Лот 72691-133
Расположение
г Санкт-Петербург, ш Южное, д 45 к 5 стр 1
Международная
25 мин
Ломоносовская
28 мин
Технические характеристики
Параметры
Инженерия
кондиционер, вентиляция
Подать заявку
Отдел аренды и продаж
+7 931 109-43-28
Похожие объявления
ID 1777942
ID 1777812
ID 1292415
ID 1774586
ID 1774909
ID 1783235
Новость дня
Развитие рынка курортной недвижимости в Анапе и Крыму
Анапа стала лидером по росту цен на недвижимость в южных регионах за первый квартал 2026 года, в то время как Сочи теряет свои позиции из-за снижения предложения и незначительных изменений в ценах за квадратный метр.
Все новости
Сегодня — 29 апреля, среда / Санкт-Петербург
Соседский центр "ЖИВИ Клуб" открыл свои двери в Новоселье
Сегодня — 29 апреля, среда / Москва
Аренда складов в Москве снизилась на 25%