Главная Купить офис в Санкт-Петербурге и ЛО Офис 607 м² в ELEMENT PRIME / Элемент Прайм

Купить офис 607 м² в ELEMENT PRIME / Элемент Прайм

ID 1778444
Цена
324 397 759 ₽
Ставка
534 428 ₽ / м²
Площадь
607 м²
Класс
A
Этаж
2 из 9
ИФНС
7813
агентство недвижимости
г Санкт-Петербург, пр-кт Левашовский, д 13 На карте
Петроградская
19 мин
Описание
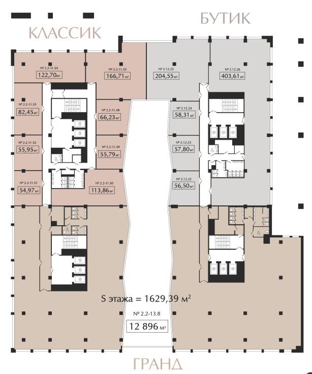
ПЛАТИМ АГЕНТАМ. Входим в ассоциацию профессионалов коммерческой недвижимости КОКОН. Бизнес-центр расположен в самом сердце Петроградского района, одного из самых престижных и деловых кварталов Санкт-Петербурга. В окружении головные офисы ведущих компаний, лучшие рестораны и арт-пространства, создающие атмосферу высокого уровня жизни и работы. Описание помещения: Два соседних блока 204 м2 и 403 м2. Помещения оснащены всеми необходимыми коммуникациями и системами.
Высокие потолки, панорамное остекление и отсутствие несущих стен создают ощущение простора и свободы. Отдельный вход. Этаж: 2. Планировка: открытая ( open space ). Под чистовую отделку. Высокие потолки. Высота потолка: 3.65м. Тип налогообложения: С НДС. Налоговая: 16. Лифты: Есть. Вентиляция: Приточно-вытяжная. Кондиционирование: Центральное. Безопасность: Круглосуточная охрана, Контроль доступа, Система пожаротушений, Видеонаблюдение. Провайдеры: . Парковка: Подземная, Наземная. Лот 82133-133
Расположение
г Санкт-Петербург, пр-кт Левашовский, д 13
Петроградская
19 мин
Технические характеристики
Параметры
Инженерия
кондиционер, вентиляция
Подать заявку
Отдел аренды и продаж
+7 931 109-43-28
Похожие объявления
ID 1789861
ID 1775872
ID 1789251
Новость дня
Развитие рынка курортной недвижимости в Анапе и Крыму
Анапа стала лидером по росту цен на недвижимость в южных регионах за первый квартал 2026 года, в то время как Сочи теряет свои позиции из-за снижения предложения и незначительных изменений в ценах за квадратный метр.
Все новости
Сегодня — 29 апреля, среда / Санкт-Петербург
Соседский центр "ЖИВИ Клуб" открыл свои двери в Новоселье
Сегодня — 29 апреля, среда / Москва
Аренда складов в Москве снизилась на 25%