Главная Купить ПСН в Санкт-Петербурге и ЛО ПСН 662 м² в Смарт Гранитная

Купить ПСН 662 м² в Смарт Гранитная

ID 1777508
Цена
165 522 499 ₽
Ставка
250 034 ₽ / м²
Площадь
662 м²
Этаж
3 из 4
ИФНС
7806
агентство недвижимости
г Санкт-Петербург, ул Гранитная, д 49 На карте
Ладожская
10 мин
Описание
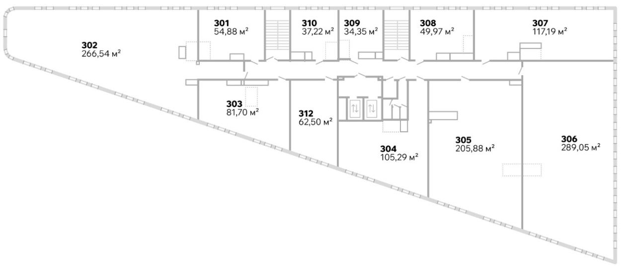
ПЛАТИМ АГЕНТАМ. Входим в ассоциацию профессионалов коммерческой недвижимости КОКОН. МФК Smart Гранитная находится в шаговой доступности от станции метро Ладожская. Описание помещения: Блок состоит из 4 помещений 205.88 м2, 289.05 м2, 117.19 м2, 49.97 м2. Оснащены всеми необходимыми коммуникациями и системами. В каждом помещении отдельный вход. Срок сдачи объекта 2 квартал 2027 года. Отдельный вход. Этаж: 3. Планировка: открытая ( open space ). Под чистовую отделку. Высокие потолки. Тип налогообложения: УСН. Налоговая: 21. Лифты: Есть. Вентиляция: Приточно-вытяжная. Кондиционирование: Центральное. Безопасность: Круглосуточный доступ, Контроль доступа, Система пожаротушений, Видеонаблюдение. Провайдеры: . Парковка: Наземная. Лот 70590-133
Расположение
г Санкт-Петербург, ул Гранитная, д 49
Ладожская
10 мин
Технические характеристики
Параметры
Инженерия
кондиционер, вентиляция
Подать заявку
Отдел аренды и продаж
+7 931 109-43-28
Похожие объявления
ID 1773989
ID 1773991
ID 1773616
ID 1777247
ID 1777510
ID 109807
Новость дня
Развитие рынка курортной недвижимости в Анапе и Крыму
Анапа стала лидером по росту цен на недвижимость в южных регионах за первый квартал 2026 года, в то время как Сочи теряет свои позиции из-за снижения предложения и незначительных изменений в ценах за квадратный метр.
Все новости
Сегодня — 29 апреля, среда / Санкт-Петербург
Соседский центр "ЖИВИ Клуб" открыл свои двери в Новоселье
Сегодня — 29 апреля, среда / Москва
Аренда складов в Москве снизилась на 25%