Главная
Аренда производственных помещений в Санкт-Петербурге и ЛО
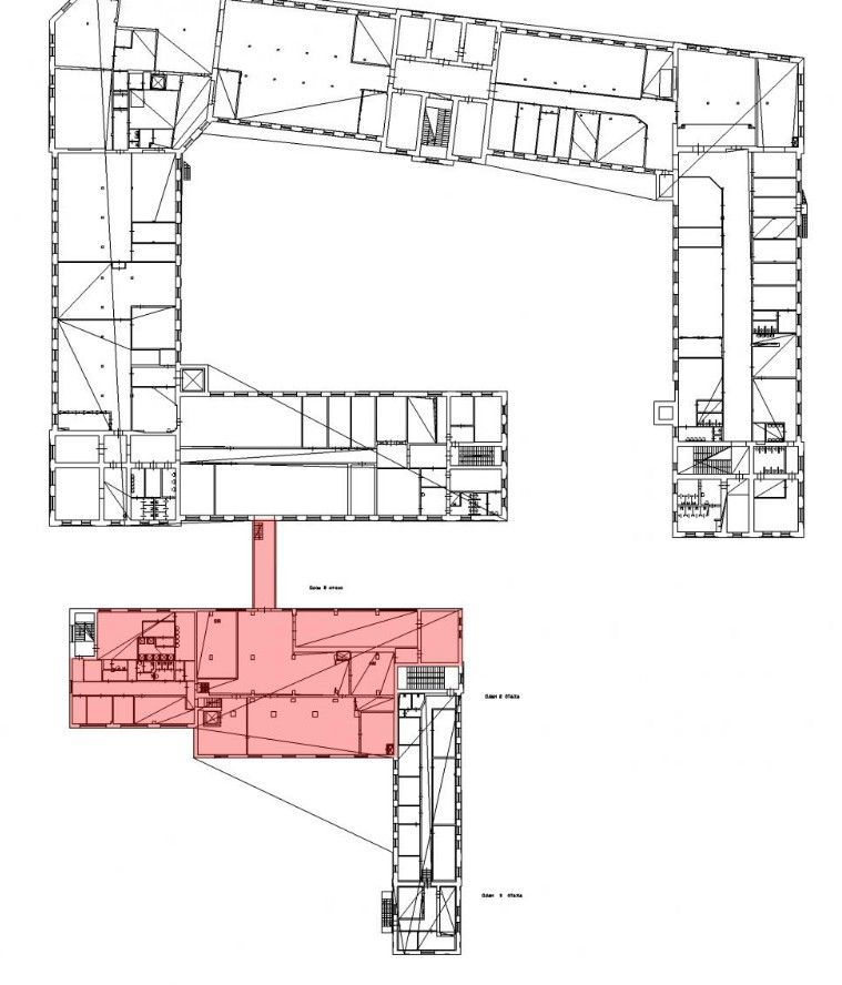
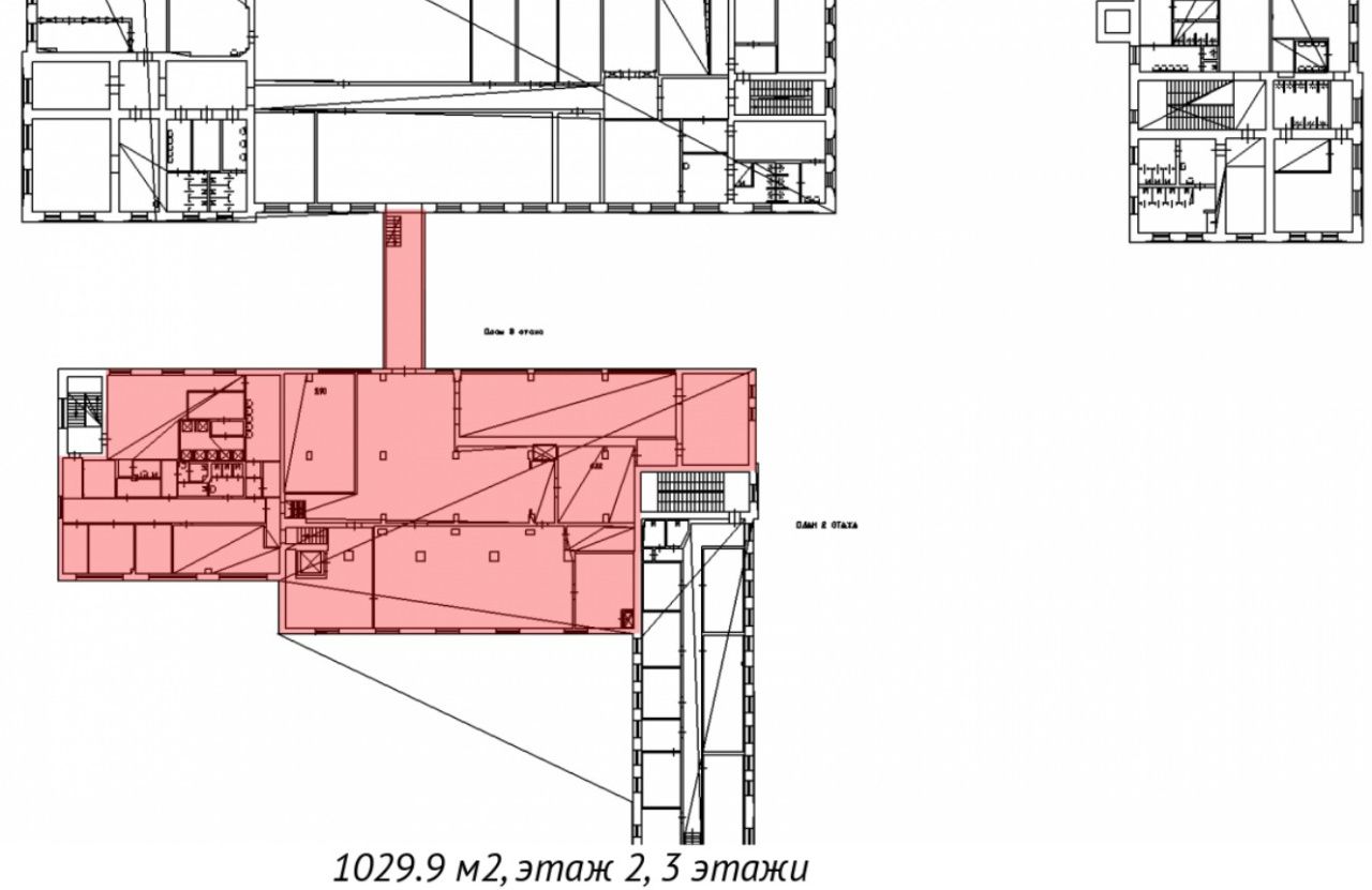
Производственное помещение 1029 м² в Комсомола, 1
Описание
Бизнес-центр расположен в Санкт-Петербурге в Калининском районе. Здание находится в шаговой доступности от станции метро Площадь Ленина, примерно 4 минуты на транспорте, также удобно добираться от станций Выборгская 9 минут и Чернышевская 10 минут на транспорте. Описание помещения: Помещение оснащено всеми необходимыми коммуникациями - освещение, отопление, выделенная электрическая мощность.
Высота потолков - от 2,97 до 5,70 метров.
Напольное покрытие - бетонный пол. Отдельный вход. Этаж: 3. Планировка: открытая ( open space ). Типовой ремонт. Высокие потолки. Высота потолка: 5.7м. Тип налогообложения: С НДС. Коммунальные услуги оплачиваются отдельно. Налоговая: 18. Лифты: Нет. Вентиляция: Приточно-вытяжная. Кондиционирование: Сплит-системы. Безопасность: Круглосуточная охрана, Контроль доступа, Система пожаротушений, Видеонаблюдение. Провайдеры: . Парковка: Наземная. Доп. параметры склада и производства: Отапливаемый. Лот 72768-133
Высота потолков - от 2,97 до 5,70 метров.
Напольное покрытие - бетонный пол. Отдельный вход. Этаж: 3. Планировка: открытая ( open space ). Типовой ремонт. Высокие потолки. Высота потолка: 5.7м. Тип налогообложения: С НДС. Коммунальные услуги оплачиваются отдельно. Налоговая: 18. Лифты: Нет. Вентиляция: Приточно-вытяжная. Кондиционирование: Сплит-системы. Безопасность: Круглосуточная охрана, Контроль доступа, Система пожаротушений, Видеонаблюдение. Провайдеры: . Парковка: Наземная. Доп. параметры склада и производства: Отапливаемый. Лот 72768-133
Расположение
г Санкт-Петербург, ул Комсомола, д 1-3
Площадь Ленина
—
12 мин
Технические характеристики
Параметры
Инженерия
кондиционер, вентиляция
Новость дня
Все новости
Сегодня — 30 апреля, четверг / Москва
"Уровень вакансии на складах в Московском регионе достиг 5,4% из-за увеличения предложений по субаренде"
Сегодня — 30 апреля, четверг / Москва
"Прогнозируется незначительный прирост числа туристов в первом квартале 2026 года - всего 2,8%"
Сегодня — 30 апреля, четверг / Москва
Компания "Ориентир" планирует вложить до 150 млрд рублей в расширение бизнеса и развитие новых секторов.
Сегодня — 30 апреля, четверг / Москва
"Завершено строительство наземной парковки на 400 автомобильных мест в парке «Ривер Парк Коломенское»"
Сегодня — 30 апреля, четверг / Москва
Скорось открытия новых магазинов «Лэтуаль» снизится - 150 точек закроются к 2026 году.
Сегодня — 30 апреля, четверг / Москва
Смайл-бар сети "Белая точка" теперь доступен посетителям ТЦ "Левел Причальный"
Вчера — 29 апреля, среда / Москва
Московский цех открыл производство 3D-принтеров для металлической печати.
Вчера — 29 апреля, среда / Москва
БМ-банк завершил продажу большей части площадей в ТЦ «Весна» на Новом Арбате.
Вчера — 29 апреля, среда / Москва
Перефразированное название: "Сеть магазинов 'Жизньмарт' возобновляет свою деятельность в Челябинске"
Вчера — 29 апреля, среда / Санкт-Петербург
Сервисный офис «Практик» начал свою работу на Октябрьской набережной в Санкт-Петербурге.
Вчера — 29 апреля, среда / Санкт-Петербург
Строительство складских помещений в Санкт-Петербурге и Ленинградской области увеличилось в 2,5 раза.
Вчера — 29 апреля, среда / Москва
Москва увеличила объем строительства в рамках программы МПТ до 9,5 миллионов квадратных метров
Вчера — 29 апреля, среда / Санкт-Петербург
Соседский центр "ЖИВИ Клуб" открыл свои двери в Новоселье
Вчера — 29 апреля, среда / Москва
"Завершено строительство пятиэтажной наземной парковки в районе Нагатинский Затон"
Вчера — 29 апреля, среда / Санкт-Петербург
Рекордный уровень строительства складов зафиксирован в Санкт-Петербурге и Ленинградской области
Вчера — 29 апреля, среда / Москва
Аренда складов в Москве снизилась на 25%
28 апреля, вторник / Москва
"Появление двух новых брендов на российском рынке в начале 2026 года"
28 апреля, вторник / Москва
27-этажный бизнес-центр класса А в Коммунарке завершает процесс утверждения своего архитектурного дизайна
28 апреля, вторник / Москва
Перефразированное название статьи: "Открытие первого флагманского магазина Lumique в «Авиапарке»"
28 апреля, вторник / Москва
"Подольская фабрика офсетной печати выставляет на приватизацию 49% своих акций"