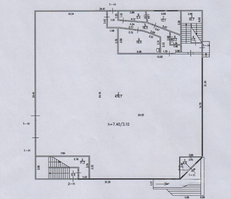
Описание
ПЛАТИМ АГЕНТАМ. Входим в ассоциацию профессионалов коммерческой недвижимости КОКОН. Здание бизнес-центра расположено в Центральном районе Санкт Петербурга в зоне высокой деловой активности. Объект находится в шаговой доступности от Московского вокзала и автовокзала - на Обводном канале. Описание помещения: Двухэтажное офисное здание кабинетной планировки. Отделка стандартная офисная.
Мощность электросети 45 кВт. Земля в собственности. Отдельный вход. Этаж: 1. Планировка: кабинетная ( коридорная ). Типовой ремонт. Высота потолка: 2.8м. Тип налогообложения: С НДС. В настоящее время помещение сдается проектным и монтажным компаниям. Налоговая: 09. Лифты: Нет. Вентиляция: Приточно-вытяжная. Кондиционирование: Сплит-системы. Безопасность: Контроль доступа, Видеонаблюдение. Провайдеры: . Парковка: Наземная. Лот 81905-133
Мощность электросети 45 кВт. Земля в собственности. Отдельный вход. Этаж: 1. Планировка: кабинетная ( коридорная ). Типовой ремонт. Высота потолка: 2.8м. Тип налогообложения: С НДС. В настоящее время помещение сдается проектным и монтажным компаниям. Налоговая: 09. Лифты: Нет. Вентиляция: Приточно-вытяжная. Кондиционирование: Сплит-системы. Безопасность: Контроль доступа, Видеонаблюдение. Провайдеры: . Парковка: Наземная. Лот 81905-133
Расположение
г Санкт-Петербург, ул Разъезжая, д 44 литера и
Лиговский проспект
—
5 мин
Владимирская
—
8 мин
Технические характеристики
Параметры
Инженерия
кондиционер, вентиляция
Новость дня
Все новости
Сегодня — 29 апреля, среда / Москва
Перефразированное название: "Сеть магазинов 'Жизньмарт' возобновляет свою деятельность в Челябинске"
Сегодня — 29 апреля, среда / Санкт-Петербург
Сервисный офис «Практик» начал свою работу на Октябрьской набережной в Санкт-Петербурге.
Сегодня — 29 апреля, среда / Санкт-Петербург
Строительство складских помещений в Санкт-Петербурге и Ленинградской области увеличилось в 2,5 раза.
Сегодня — 29 апреля, среда / Москва
Москва увеличила объем строительства в рамках программы МПТ до 9,5 миллионов квадратных метров
Сегодня — 29 апреля, среда / Санкт-Петербург
Соседский центр "ЖИВИ Клуб" открыл свои двери в Новоселье
Сегодня — 29 апреля, среда / Москва
"Завершено строительство пятиэтажной наземной парковки в районе Нагатинский Затон"
Сегодня — 29 апреля, среда / Санкт-Петербург
Рекордный уровень строительства складов зафиксирован в Санкт-Петербурге и Ленинградской области
Сегодня — 29 апреля, среда / Москва
Аренда складов в Москве снизилась на 25%
Вчера — 28 апреля, вторник / Москва
"Появление двух новых брендов на российском рынке в начале 2026 года"
Вчера — 28 апреля, вторник / Москва
27-этажный бизнес-центр класса А в Коммунарке завершает процесс утверждения своего архитектурного дизайна
Вчера — 28 апреля, вторник / Москва
Перефразированное название статьи: "Открытие первого флагманского магазина Lumique в «Авиапарке»"
Вчера — 28 апреля, вторник / Москва
"Подольская фабрика офсетной печати выставляет на приватизацию 49% своих акций"
Вчера — 28 апреля, вторник / Москва
Самострои в ЮВАО: площадь почти 4 тыс. кв. м за первый квартал
Вчера — 28 апреля, вторник / Москва
Иск на 11,7 млрд рублей подан банком «Санкт-Петербург» к структуре «Гранели»
Вчера — 28 апреля, вторник / Москва
"«Яндекс Фабрика» запускает цепь офлайн-магазинов в Москве"
Вчера — 28 апреля, вторник / Москва
Детская сеть магазинов "Кораблик" столкнулась с финансовыми трудностями
Вчера — 28 апреля, вторник / Москва
Снижение загрузки премиум отелей Москвы в первом квартале до 69,4%
Вчера — 28 апреля, вторник / Крым
"Продается комплекс солнечных электростанций на полуострове Крым"
27 апреля, понедельник / Москва
Гастропространство «НеДетский» на 630 посадочных мест открылось в Центральном детском магазине на Лубянке.
27 апреля, понедельник / Москва
"FORMA завершает продажу всех офисных помещений в бизнес-центре «ЛЕЙКС»"