Описание
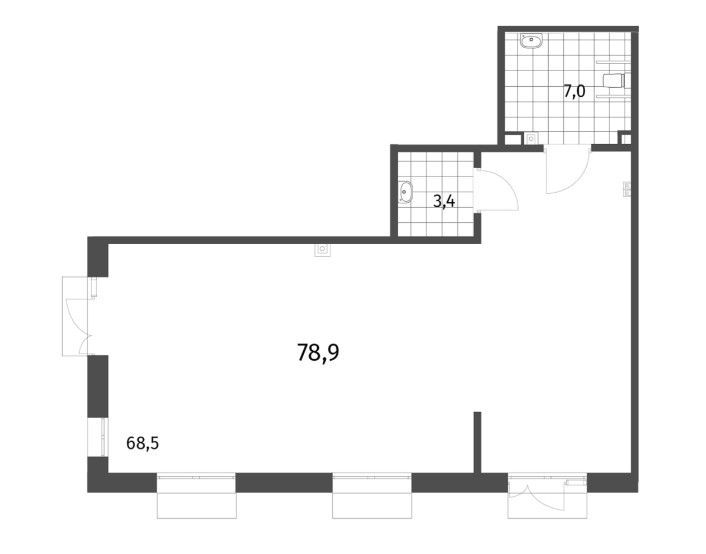
Парусная 1- жилой квартал бизнес-класса, расположенный в исторической части Васильевского острова, рядом с набережной Галерной гавани и Финским заливом в окружении парков и живописных мест для прогулок. Описание помещения: Блок нескольких помещений 64.8 м2, 78 м2, 97.6 м2, 78.9 м2 с панорамными окнами.
Оснащены всеми необходимыми коммуникациями и системами.
В каждом помещении отдельный вход и собственные санузлы.
Электрическая мощность 63.86 кВт. Отдельный вход. Этаж: 1. Планировка: смешанная. Под чистовую отделку. Высокие потолки. Высота потолка: 4.1м. Тип налогообложения: УСН. Налоговая: 16. Лифты: Есть. Вентиляция: Приточно-вытяжная. Кондиционирование: Сплит-системы. Безопасность: Круглосуточная охрана, Контроль доступа, Система пожаротушений, Видеонаблюдение. Провайдеры: . Парковка: Наземная. Лот 82974-133
Оснащены всеми необходимыми коммуникациями и системами.
В каждом помещении отдельный вход и собственные санузлы.
Электрическая мощность 63.86 кВт. Отдельный вход. Этаж: 1. Планировка: смешанная. Под чистовую отделку. Высокие потолки. Высота потолка: 4.1м. Тип налогообложения: УСН. Налоговая: 16. Лифты: Есть. Вентиляция: Приточно-вытяжная. Кондиционирование: Сплит-системы. Безопасность: Круглосуточная охрана, Контроль доступа, Система пожаротушений, Видеонаблюдение. Провайдеры: . Парковка: Наземная. Лот 82974-133
Расположение
г Санкт-Петербург, ул Парусная, д 1
Приморская
—
5 мин
Технические характеристики
Параметры
Инженерия
кондиционер, вентиляция
Новость дня
Все новости
Сегодня — 29 апреля, среда / Москва
Московский цех открыл производство 3D-принтеров для металлической печати.
Сегодня — 29 апреля, среда / Москва
БМ-банк завершил продажу большей части площадей в ТЦ «Весна» на Новом Арбате.
Сегодня — 29 апреля, среда / Москва
Перефразированное название: "Сеть магазинов 'Жизньмарт' возобновляет свою деятельность в Челябинске"
Сегодня — 29 апреля, среда / Санкт-Петербург
Сервисный офис «Практик» начал свою работу на Октябрьской набережной в Санкт-Петербурге.
Сегодня — 29 апреля, среда / Санкт-Петербург
Строительство складских помещений в Санкт-Петербурге и Ленинградской области увеличилось в 2,5 раза.
Сегодня — 29 апреля, среда / Москва
Москва увеличила объем строительства в рамках программы МПТ до 9,5 миллионов квадратных метров
Сегодня — 29 апреля, среда / Санкт-Петербург
Соседский центр "ЖИВИ Клуб" открыл свои двери в Новоселье
Сегодня — 29 апреля, среда / Москва
"Завершено строительство пятиэтажной наземной парковки в районе Нагатинский Затон"
Сегодня — 29 апреля, среда / Санкт-Петербург
Рекордный уровень строительства складов зафиксирован в Санкт-Петербурге и Ленинградской области
Сегодня — 29 апреля, среда / Москва
Аренда складов в Москве снизилась на 25%
Вчера — 28 апреля, вторник / Москва
"Появление двух новых брендов на российском рынке в начале 2026 года"
Вчера — 28 апреля, вторник / Москва
27-этажный бизнес-центр класса А в Коммунарке завершает процесс утверждения своего архитектурного дизайна
Вчера — 28 апреля, вторник / Москва
Перефразированное название статьи: "Открытие первого флагманского магазина Lumique в «Авиапарке»"
Вчера — 28 апреля, вторник / Москва
"Подольская фабрика офсетной печати выставляет на приватизацию 49% своих акций"
Вчера — 28 апреля, вторник / Москва
Самострои в ЮВАО: площадь почти 4 тыс. кв. м за первый квартал
Вчера — 28 апреля, вторник / Москва
Иск на 11,7 млрд рублей подан банком «Санкт-Петербург» к структуре «Гранели»
Вчера — 28 апреля, вторник / Москва
"«Яндекс Фабрика» запускает цепь офлайн-магазинов в Москве"
Вчера — 28 апреля, вторник / Москва
Детская сеть магазинов "Кораблик" столкнулась с финансовыми трудностями
Вчера — 28 апреля, вторник / Москва
Снижение загрузки премиум отелей Москвы в первом квартале до 69,4%
Вчера — 28 апреля, вторник / Крым
"Продается комплекс солнечных электростанций на полуострове Крым"