Описание
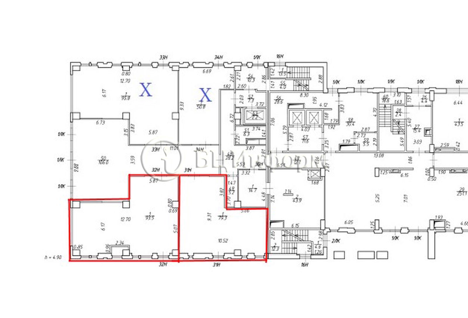
Площадь: 79.3 кв.м.
Этаж: 1.
Планировка: open space (открытая).
Окна: панорамные.
Потолки: 5 м.
Инженерные системы: кондиционирование, приточно-вытяжная вентиляция.
В ставку включено: НДС, коммунальные услуги.
Пропускной режим: электронный контроль доступа.
Инфраструктура БЦ: имеется парковка, рядом есть кафе и столовая.
Район: Калининский.
Метро: Гражданский проспект, Девяткино, Академическая.
Все услуги предоставляются без комиссии. Договор аренды заключается напрямую с собственником.
Этаж: 1.
Планировка: open space (открытая).
Окна: панорамные.
Потолки: 5 м.
Инженерные системы: кондиционирование, приточно-вытяжная вентиляция.
В ставку включено: НДС, коммунальные услуги.
Пропускной режим: электронный контроль доступа.
Инфраструктура БЦ: имеется парковка, рядом есть кафе и столовая.
Район: Калининский.
Метро: Гражданский проспект, Девяткино, Академическая.
Все услуги предоставляются без комиссии. Договор аренды заключается напрямую с собственником.
Расположение
г Санкт-Петербург, пр-кт Просвещения, д 83
Девяткино
—
30 мин
Гражданский проспект
—
8 мин
Академическая
—
33 мин
Технические характеристики
Параметры
Электричество
есть
Телекоммуникации
интернет
Охрана
есть
Отопление
есть
Инженерия
кондиционер, вентиляция, пожарная сигнализация, лифт
Статус владельца объявления
агентство
Класс
b+
Новость дня
Все новости
Сегодня — 30 апреля, четверг / Москва
"Завершено строительство наземной парковки на 400 автомобильных мест в парке «Ривер Парк Коломенское»"
Сегодня — 30 апреля, четверг / Москва
Скорось открытия новых магазинов «Лэтуаль» снизится - 150 точек закроются к 2026 году.
Сегодня — 30 апреля, четверг / Москва
Смайл-бар сети "Белая точка" теперь доступен посетителям ТЦ "Левел Причальный"
Вчера — 29 апреля, среда / Москва
Московский цех открыл производство 3D-принтеров для металлической печати.
Вчера — 29 апреля, среда / Москва
БМ-банк завершил продажу большей части площадей в ТЦ «Весна» на Новом Арбате.
Вчера — 29 апреля, среда / Москва
Перефразированное название: "Сеть магазинов 'Жизньмарт' возобновляет свою деятельность в Челябинске"
Вчера — 29 апреля, среда / Санкт-Петербург
Сервисный офис «Практик» начал свою работу на Октябрьской набережной в Санкт-Петербурге.
Вчера — 29 апреля, среда / Санкт-Петербург
Строительство складских помещений в Санкт-Петербурге и Ленинградской области увеличилось в 2,5 раза.
Вчера — 29 апреля, среда / Москва
Москва увеличила объем строительства в рамках программы МПТ до 9,5 миллионов квадратных метров
Вчера — 29 апреля, среда / Санкт-Петербург
Соседский центр "ЖИВИ Клуб" открыл свои двери в Новоселье
Вчера — 29 апреля, среда / Москва
"Завершено строительство пятиэтажной наземной парковки в районе Нагатинский Затон"
Вчера — 29 апреля, среда / Санкт-Петербург
Рекордный уровень строительства складов зафиксирован в Санкт-Петербурге и Ленинградской области
Вчера — 29 апреля, среда / Москва
Аренда складов в Москве снизилась на 25%
28 апреля, вторник / Москва
"Появление двух новых брендов на российском рынке в начале 2026 года"
28 апреля, вторник / Москва
27-этажный бизнес-центр класса А в Коммунарке завершает процесс утверждения своего архитектурного дизайна
28 апреля, вторник / Москва
Перефразированное название статьи: "Открытие первого флагманского магазина Lumique в «Авиапарке»"
28 апреля, вторник / Москва
"Подольская фабрика офсетной печати выставляет на приватизацию 49% своих акций"
28 апреля, вторник / Москва
Самострои в ЮВАО: площадь почти 4 тыс. кв. м за первый квартал
28 апреля, вторник / Москва
Иск на 11,7 млрд рублей подан банком «Санкт-Петербург» к структуре «Гранели»
28 апреля, вторник / Москва
"«Яндекс Фабрика» запускает цепь офлайн-магазинов в Москве"