Описание
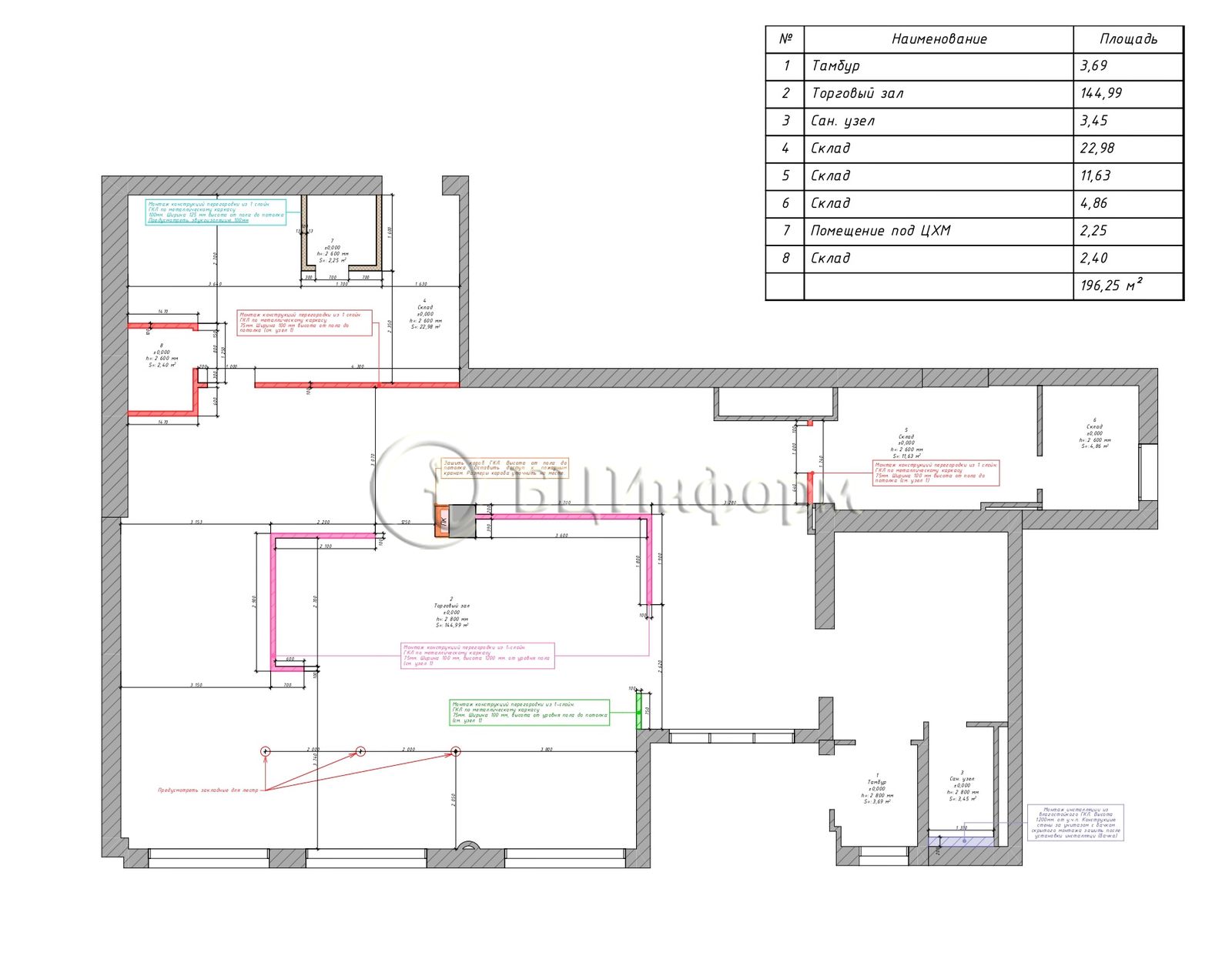
Предлагается в аренду помещение свободного назначения ( под банк, офис, пекарню и пр.), общей площадью 192.5 м.кв.
Расположен на первом этаже бизнес-центра. Отдельный вход.
Смешанная планировка. Просторный зал ~ 144 м.кв., тамбур, подсобные помещения. Санузел.
Панорамное остекление.
Хорошее состояние. Выполнена качественная отделка.
К услугам арендаторов охраняемый автомобильный паркинг, круглосуточная служба безопасности и видеонаблюдение.
Оснащено системой приточно-вытяжной вентиляции и кондиционирования.
В шаговой доступности станции метро «Спортивная» и «Василеостровская».
Готово к въезду потенциального арендатора. Договор аренды напрямую с собственником. Без скрытых платежей и комиссий.
Расположен на первом этаже бизнес-центра. Отдельный вход.
Смешанная планировка. Просторный зал ~ 144 м.кв., тамбур, подсобные помещения. Санузел.
Панорамное остекление.
Хорошее состояние. Выполнена качественная отделка.
К услугам арендаторов охраняемый автомобильный паркинг, круглосуточная служба безопасности и видеонаблюдение.
Оснащено системой приточно-вытяжной вентиляции и кондиционирования.
В шаговой доступности станции метро «Спортивная» и «Василеостровская».
Готово к въезду потенциального арендатора. Договор аренды напрямую с собственником. Без скрытых платежей и комиссий.
Расположение
г Санкт-Петербург, пр-кт Малый В.О., д 22 литера а
Василеостровская
—
7 мин
Спортивная
—
13 мин
Технические характеристики
Параметры
Электричество
есть
Телекоммуникации
интернет
Охрана
есть
Отопление
есть
Инженерия
кондиционер, вентиляция, пожарная сигнализация, лифт
Статус владельца объявления
агентство
Класс
a
Новость дня
Расширение возможностей для B2B-клиентов: Avito вводит новые услуги для строительства складов
На платформе Авито теперь доступна категория "Коммерческое строительство" в сегменте услуг, предлагающая широкий выбор специализированных работ и возведение объектов "под ключ" для бизнеса, что упрощает поиск подрядчиков и субподрядчиков для коммерческих проектов.
Все новости
Сегодня — 30 апреля, четверг / Москва
"Бумеранг Капитал" увеличил свою долю в сети кафе-пекарен "Цех 85" до 50%
Сегодня — 30 апреля, четверг / Ставропольский
В Кисловодске начался проект строительства инвестиционного отеля "Реликт"
Сегодня — 30 апреля, четверг / Москва
Ресторан «Долина 5165» и магазин Sokolov теперь доступны посетителям ТРЦ Avenue Sever
Сегодня — 30 апреля, четверг / Москва
"Новый флагманский магазин под названием «Флаувау» открыл свои двери на Мясницкой улице"
Сегодня — 30 апреля, четверг / Москва
"Уровень вакансии на складах в Московском регионе достиг 5,4% из-за увеличения предложений по субаренде"
Сегодня — 30 апреля, четверг / Москва
"Прогнозируется незначительный прирост числа туристов в первом квартале 2026 года - всего 2,8%"
Сегодня — 30 апреля, четверг / Москва
Компания "Ориентир" планирует вложить до 150 млрд рублей в расширение бизнеса и развитие новых секторов.
Сегодня — 30 апреля, четверг / Москва
"Завершено строительство наземной парковки на 400 автомобильных мест в парке «Ривер Парк Коломенское»"
Сегодня — 30 апреля, четверг / Москва
Скорось открытия новых магазинов «Лэтуаль» снизится - 150 точек закроются к 2026 году.
Сегодня — 30 апреля, четверг / Москва
Смайл-бар сети "Белая точка" теперь доступен посетителям ТЦ "Левел Причальный"
Вчера — 29 апреля, среда / Москва
Московский цех открыл производство 3D-принтеров для металлической печати.
Вчера — 29 апреля, среда / Москва
БМ-банк завершил продажу большей части площадей в ТЦ «Весна» на Новом Арбате.
Вчера — 29 апреля, среда / Москва
Перефразированное название: "Сеть магазинов 'Жизньмарт' возобновляет свою деятельность в Челябинске"
Вчера — 29 апреля, среда / Санкт-Петербург
Сервисный офис «Практик» начал свою работу на Октябрьской набережной в Санкт-Петербурге.
Вчера — 29 апреля, среда / Санкт-Петербург
Строительство складских помещений в Санкт-Петербурге и Ленинградской области увеличилось в 2,5 раза.
Вчера — 29 апреля, среда / Москва
Москва увеличила объем строительства в рамках программы МПТ до 9,5 миллионов квадратных метров
Вчера — 29 апреля, среда / Санкт-Петербург
Соседский центр "ЖИВИ Клуб" открыл свои двери в Новоселье
Вчера — 29 апреля, среда / Москва
"Завершено строительство пятиэтажной наземной парковки в районе Нагатинский Затон"
Вчера — 29 апреля, среда / Санкт-Петербург
Рекордный уровень строительства складов зафиксирован в Санкт-Петербурге и Ленинградской области
Вчера — 29 апреля, среда / Москва
Аренда складов в Москве снизилась на 25%