Описание
ID: 832330
Продажа коммерческих помещений и рынка в Гатчине
Отличная возможность для бизнеса!
Ищете выгодное место для развития своего бизнеса? Предлагаем вам уникальную возможность приобрести коммерческие помещения и рынок в живописном городе Гатчина!
Почему выбирают Гатчину?
• Развитая инфраструктура
Гатчина — это город с богатой историей и развитой инфраструктурой, что обеспечивает стабильный поток клиентов и высокий потенциал для бизнеса.
• Удобное расположение
Коммерческие помещения расположены в стратегическом районе города, легко доступные для посетителей и поставщиков.
• Разнообразие объектов
Предлагаем помещения разной площади — от компактных и торговых площадей до рынка, идеально подходящих для торговли, оказания услуг и организации мероприятий.
• Инфраструктура для семей и детей
На территории рынка регулярно проводятся развлекательные мероприятия для детей, что привлекает семейный сегмент клиентов и создает приятную атмосферу для посетителей.
• Близость к жилым районам и школам
Рынок расположен вблизи жилых комплексов и школы, что обеспечивает постоянный поток посетителей и удобство для сотрудников и клиентов.
• Выгодные условия покупки
Конкурентные цены и гибкие условия сделки делают приобретение коммерческой недвижимости максимально выгодным для инвесторов и предпринимателей.
Что вы получаете?
• Современные коммерческие помещения с хорошей планировкой и разной площадью
• Рынки с высокой проходимостью и развитой инфраструктурой
• Возможность быстрого запуска бизнеса и получения прибыли
• Организацию мероприятий для детей, что способствует привлечению семейной аудитории.
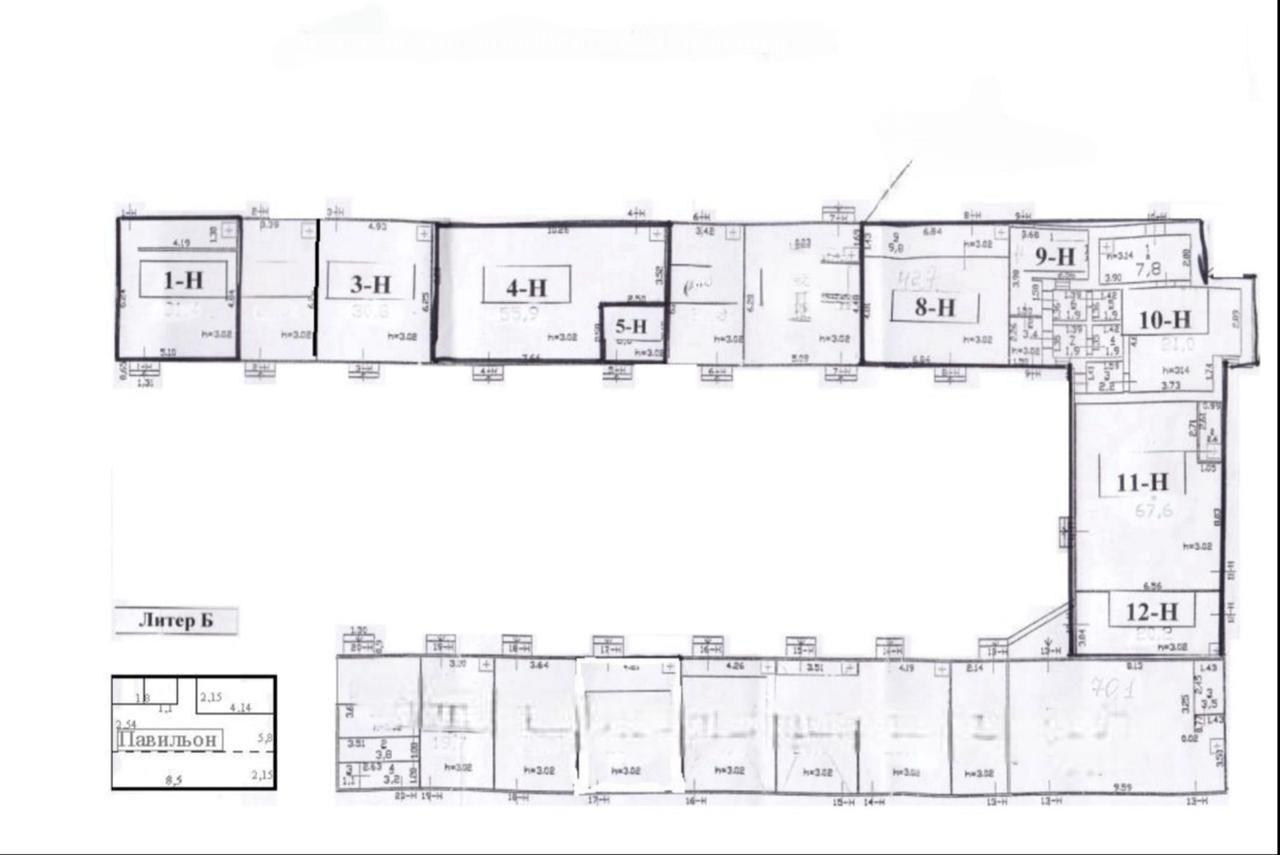
Помещения, которые в продаже, имеют разную площадь, от 6м2 до 76 м2. Заведена вода, есть канализация, отопление. Улиц а Куприна, одна из оживленных улиц города, связывающая жилые районы с центром. Обеспечивает постоянный поток населения. Рядом остановка, маршруты, что удобно для покупателей и арендаторов. Вокруг жилые дома, что гарантирует стабильный спрос на товары постоянного пользования и услуги.
Свяжитесь со мной уже сегодня и станьте владельцем перспективных коммерческих объектов в Гатчине! Развивайте свой бизнес в городе с богатым потенциалом, стабильным спросом и активной социальной жизнью.
Продажа коммерческих помещений и рынка в Гатчине
Отличная возможность для бизнеса!
Ищете выгодное место для развития своего бизнеса? Предлагаем вам уникальную возможность приобрести коммерческие помещения и рынок в живописном городе Гатчина!
Почему выбирают Гатчину?
• Развитая инфраструктура
Гатчина — это город с богатой историей и развитой инфраструктурой, что обеспечивает стабильный поток клиентов и высокий потенциал для бизнеса.
• Удобное расположение
Коммерческие помещения расположены в стратегическом районе города, легко доступные для посетителей и поставщиков.
• Разнообразие объектов
Предлагаем помещения разной площади — от компактных и торговых площадей до рынка, идеально подходящих для торговли, оказания услуг и организации мероприятий.
• Инфраструктура для семей и детей
На территории рынка регулярно проводятся развлекательные мероприятия для детей, что привлекает семейный сегмент клиентов и создает приятную атмосферу для посетителей.
• Близость к жилым районам и школам
Рынок расположен вблизи жилых комплексов и школы, что обеспечивает постоянный поток посетителей и удобство для сотрудников и клиентов.
• Выгодные условия покупки
Конкурентные цены и гибкие условия сделки делают приобретение коммерческой недвижимости максимально выгодным для инвесторов и предпринимателей.
Что вы получаете?
• Современные коммерческие помещения с хорошей планировкой и разной площадью
• Рынки с высокой проходимостью и развитой инфраструктурой
• Возможность быстрого запуска бизнеса и получения прибыли
• Организацию мероприятий для детей, что способствует привлечению семейной аудитории.
Помещения, которые в продаже, имеют разную площадь, от 6м2 до 76 м2. Заведена вода, есть канализация, отопление. Улиц а Куприна, одна из оживленных улиц города, связывающая жилые районы с центром. Обеспечивает постоянный поток населения. Рядом остановка, маршруты, что удобно для покупателей и арендаторов. Вокруг жилые дома, что гарантирует стабильный спрос на товары постоянного пользования и услуги.
Свяжитесь со мной уже сегодня и станьте владельцем перспективных коммерческих объектов в Гатчине! Развивайте свой бизнес в городе с богатым потенциалом, стабильным спросом и активной социальной жизнью.
Расположение
Ленинградская обл, г Гатчина, ул Куприна, д 10/18
Технические характеристики
Новость дня
Все новости
Сегодня — 29 апреля, среда / Москва
Московский цех открыл производство 3D-принтеров для металлической печати.
Сегодня — 29 апреля, среда / Москва
БМ-банк завершил продажу большей части площадей в ТЦ «Весна» на Новом Арбате.
Сегодня — 29 апреля, среда / Москва
Перефразированное название: "Сеть магазинов 'Жизньмарт' возобновляет свою деятельность в Челябинске"
Сегодня — 29 апреля, среда / Санкт-Петербург
Сервисный офис «Практик» начал свою работу на Октябрьской набережной в Санкт-Петербурге.
Сегодня — 29 апреля, среда / Санкт-Петербург
Строительство складских помещений в Санкт-Петербурге и Ленинградской области увеличилось в 2,5 раза.
Сегодня — 29 апреля, среда / Москва
Москва увеличила объем строительства в рамках программы МПТ до 9,5 миллионов квадратных метров
Сегодня — 29 апреля, среда / Санкт-Петербург
Соседский центр "ЖИВИ Клуб" открыл свои двери в Новоселье
Сегодня — 29 апреля, среда / Москва
"Завершено строительство пятиэтажной наземной парковки в районе Нагатинский Затон"
Сегодня — 29 апреля, среда / Санкт-Петербург
Рекордный уровень строительства складов зафиксирован в Санкт-Петербурге и Ленинградской области
Сегодня — 29 апреля, среда / Москва
Аренда складов в Москве снизилась на 25%
Вчера — 28 апреля, вторник / Москва
"Появление двух новых брендов на российском рынке в начале 2026 года"
Вчера — 28 апреля, вторник / Москва
27-этажный бизнес-центр класса А в Коммунарке завершает процесс утверждения своего архитектурного дизайна
Вчера — 28 апреля, вторник / Москва
Перефразированное название статьи: "Открытие первого флагманского магазина Lumique в «Авиапарке»"
Вчера — 28 апреля, вторник / Москва
"Подольская фабрика офсетной печати выставляет на приватизацию 49% своих акций"
Вчера — 28 апреля, вторник / Москва
Самострои в ЮВАО: площадь почти 4 тыс. кв. м за первый квартал
Вчера — 28 апреля, вторник / Москва
Иск на 11,7 млрд рублей подан банком «Санкт-Петербург» к структуре «Гранели»
Вчера — 28 апреля, вторник / Москва
"«Яндекс Фабрика» запускает цепь офлайн-магазинов в Москве"
Вчера — 28 апреля, вторник / Москва
Детская сеть магазинов "Кораблик" столкнулась с финансовыми трудностями
Вчера — 28 апреля, вторник / Москва
Снижение загрузки премиум отелей Москвы в первом квартале до 69,4%
Вчера — 28 апреля, вторник / Крым
"Продается комплекс солнечных электростанций на полуострове Крым"