Купить дом 180 м² в коттеджном поселке Озерный градъ
ID 1532808
Цена
19 900 000 ₽
Ставка
110 556 ₽ / м²
Площадь
180 м²
агентство недвижимости
Ленинградская обл, Всеволожский р-н, д Озерки, ул Полевая
На карте
Описание
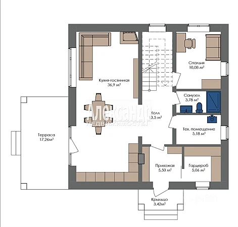
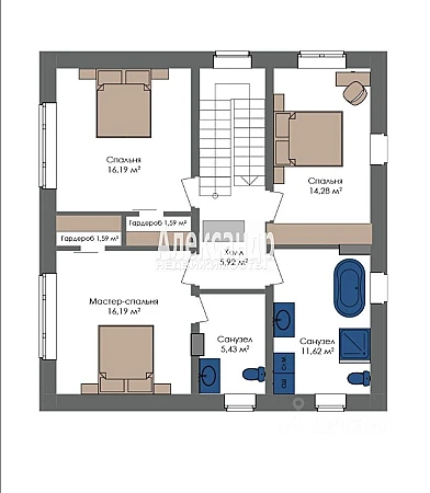
1705486 ИЖС! СЕМЕЙНАЯ ИПОТЕКА! Продается новый двухэтажный дoм из газобетона 180 м2 (в т.ч. терраса 17,26 м2) на участке 12 соток ИЖС. Дом расположен в д. Озерки, Ленинградская область, Всеволожский муниципальный район, Колтушское городское поселение. Прекрасная транспортная доступность от СПб - две трассы, Колтушское и Мурманское шоссе, от дома до КАД по Мурманскому шоссе всего 12 км. В 750м от дома автобусная остановка, рейсовые автобусы, ходят по расписанию, через 25-30 минут Вы у метро ул. Дыбенко, или метро Ладожская. Об участке К дому обеспечен асфальтированный круглогодичный подъезд. Участок расположен на Колтушской возвышенности, сухой, ровный, огорожен качественным забором из профлиста и евроштакетника с калиткой и распашными воротами. Вокруг дома выполнен дренаж, организованы места для парковки автомобилей. О доме Дом построен на ЖБ плите 300 ми из ГБ 400 мм марки D500 + 100 мм утеплитель, фасад - штукатурка и натуральный планкен, крыша- металлочерепица. Энергоэффективный, надёжный дом построен качественно, в соответствии со строительными нормами. В доме много света и воздуха, удачная современная планировка грамотно использует полезную площадь, сочетает большие комнаты с местами хранения. Стоимость указана без внутренней отделки (все коммуникации заведены в дом). 1ый этаж: прихожая, котельная, холл, санузел, кабинет/гостевая спальня 10,08 м2, светлая, просторная кухня-гостиная 36,9 м2 с выходом на террасу, где Вы сможете любоваться восходами и закатами. 2ой этаж: спальня 16,9 м2 + гардероб 1,6 м2, спальня 14,28 м2, мастер-спальня 16,9 м2 + гардероб 1,6 м2 + санузел 5,43 м2, холл 5,92 м2, санузел 11,62 м2. Коммуникации Магистральный газ в доме, электричество, скважина, септик. Инфраструктура В 300 м от дома магазин «Пятерочка», АЗС, в 750 м ещё один продуктовый магазин. «Магнит», "Пятерочка "«Рыба и икра», кафе, пекарня, автомойка, СТО, пункты выдачи OZON, Wildberries, детские сады, школы, амбулатория, Гемотест, и многое другое имеются в ближайших населенных пунктах: Хапо-Ое, Разметелево, Колтушах, Невской Дубровке. В д. Манушкино работает горнолыжный склон с подъемником. Всего в 100 м смешанный лес богатый грибами и ягодами, в 300 м находится живописное природное озеро с чистой водой и песчаным пляжем, в 3 км - Коркинское озеро, недалеко река Нева и Ладожское озеро, легендарные исторические места: Старая Ладога, Невский пятачок и др. Преимущества - оптимальная удаленность от города, идеальное место для постоянного проживания;
- отличная транспортная доступность;
- озеро и лес в двух шагах;
- развитая инфраструктура;
- земли населенных пунктов, ИЖС;
- магистральный газ;
- подходит под Семейную и рыночную ипотеку
Не упустите возможность стать владельцем этого прекрасного дома! Звоните для уточнения деталей и записи на просмотр. Больше информации на нашем сайте
- отличная транспортная доступность;
- озеро и лес в двух шагах;
- развитая инфраструктура;
- земли населенных пунктов, ИЖС;
- магистральный газ;
- подходит под Семейную и рыночную ипотеку
Не упустите возможность стать владельцем этого прекрасного дома! Звоните для уточнения деталей и записи на просмотр. Больше информации на нашем сайте
Расположение
Ленинградская обл, Всеволожский р-н, д Озерки, ул Полевая
Технические характеристики
Параметры
Тип сделки
прямая продажа
Свободные помещения в Коттеджный поселок Озерный градъ
Новость дня
Расширение возможностей для B2B-клиентов: Avito вводит новые услуги для строительства складов
На платформе Авито теперь доступна категория "Коммерческое строительство" в сегменте услуг, предлагающая широкий выбор специализированных работ и возведение объектов "под ключ" для бизнеса, что упрощает поиск подрядчиков и субподрядчиков для коммерческих проектов.
Все новости
Сегодня — 30 апреля, четверг / Москва
"Бумеранг Капитал" увеличил свою долю в сети кафе-пекарен "Цех 85" до 50%
Сегодня — 30 апреля, четверг / Ставропольский
В Кисловодске начался проект строительства инвестиционного отеля "Реликт"
Сегодня — 30 апреля, четверг / Москва
Ресторан «Долина 5165» и магазин Sokolov теперь доступны посетителям ТРЦ Avenue Sever
Сегодня — 30 апреля, четверг / Москва
"Новый флагманский магазин под названием «Флаувау» открыл свои двери на Мясницкой улице"
Сегодня — 30 апреля, четверг / Москва
"Уровень вакансии на складах в Московском регионе достиг 5,4% из-за увеличения предложений по субаренде"
Сегодня — 30 апреля, четверг / Москва
"Прогнозируется незначительный прирост числа туристов в первом квартале 2026 года - всего 2,8%"
Сегодня — 30 апреля, четверг / Москва
Компания "Ориентир" планирует вложить до 150 млрд рублей в расширение бизнеса и развитие новых секторов.
Сегодня — 30 апреля, четверг / Москва
"Завершено строительство наземной парковки на 400 автомобильных мест в парке «Ривер Парк Коломенское»"
Сегодня — 30 апреля, четверг / Москва
Скорось открытия новых магазинов «Лэтуаль» снизится - 150 точек закроются к 2026 году.
Сегодня — 30 апреля, четверг / Москва
Смайл-бар сети "Белая точка" теперь доступен посетителям ТЦ "Левел Причальный"
Вчера — 29 апреля, среда / Москва
Московский цех открыл производство 3D-принтеров для металлической печати.
Вчера — 29 апреля, среда / Москва
БМ-банк завершил продажу большей части площадей в ТЦ «Весна» на Новом Арбате.
Вчера — 29 апреля, среда / Москва
Перефразированное название: "Сеть магазинов 'Жизньмарт' возобновляет свою деятельность в Челябинске"
Вчера — 29 апреля, среда / Санкт-Петербург
Сервисный офис «Практик» начал свою работу на Октябрьской набережной в Санкт-Петербурге.
Вчера — 29 апреля, среда / Санкт-Петербург
Строительство складских помещений в Санкт-Петербурге и Ленинградской области увеличилось в 2,5 раза.
Вчера — 29 апреля, среда / Москва
Москва увеличила объем строительства в рамках программы МПТ до 9,5 миллионов квадратных метров
Вчера — 29 апреля, среда / Санкт-Петербург
Соседский центр "ЖИВИ Клуб" открыл свои двери в Новоселье
Вчера — 29 апреля, среда / Москва
"Завершено строительство пятиэтажной наземной парковки в районе Нагатинский Затон"
Вчера — 29 апреля, среда / Санкт-Петербург
Рекордный уровень строительства складов зафиксирован в Санкт-Петербурге и Ленинградской области
Вчера — 29 апреля, среда / Москва
Аренда складов в Москве снизилась на 25%