Описание
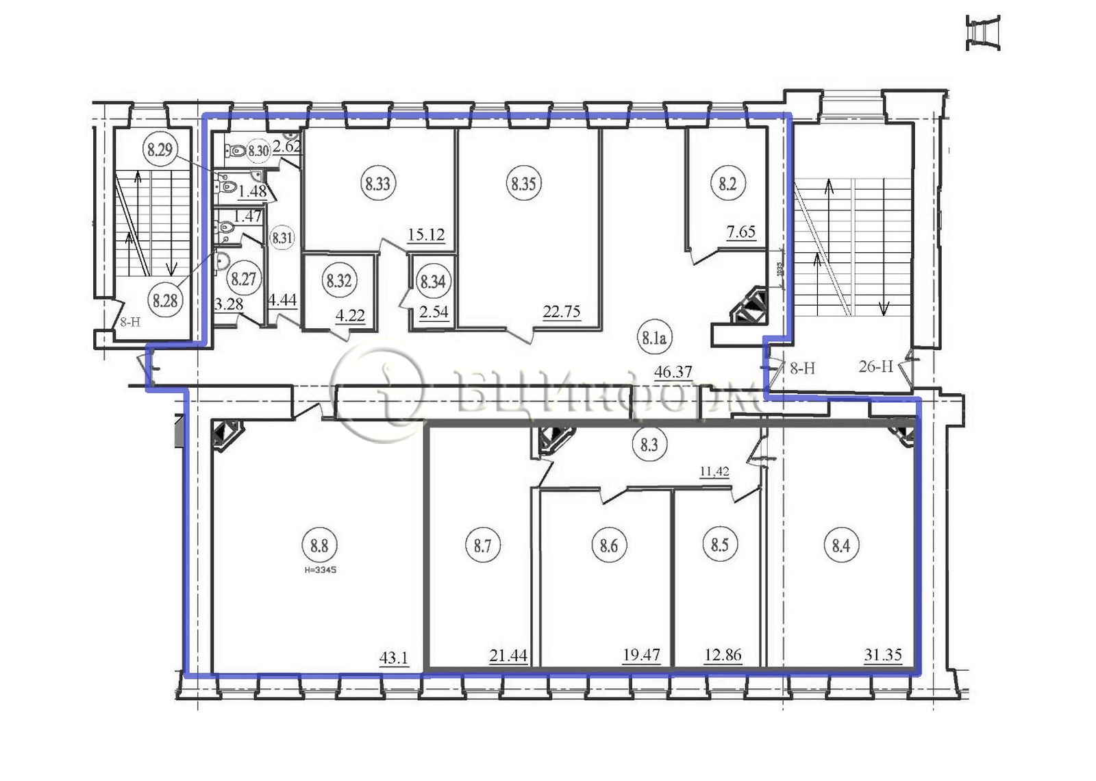
Вниманию арендаторов предлагается офисный блок, площадью 256.7 м.кв.
Располагается на пятом этаже.
Кабинетная планировка: восемь комнат, подсобные помещения, кухня, санузел.
В хорошем состоянии. Выполнена стандартная офисная отделка: подвесные потолки "Армстронг", стены - покраска.
В пешей доступности (8 минут) от станций метро "Чкаловская", "Спортивная".
Готово к въезду потенциального арендатора. Договор аренды напрямую с собственником. Без скрытых комиссий и платежей.
Располагается на пятом этаже.
Кабинетная планировка: восемь комнат, подсобные помещения, кухня, санузел.
В хорошем состоянии. Выполнена стандартная офисная отделка: подвесные потолки "Армстронг", стены - покраска.
В пешей доступности (8 минут) от станций метро "Чкаловская", "Спортивная".
Готово к въезду потенциального арендатора. Договор аренды напрямую с собственником. Без скрытых комиссий и платежей.
Расположение
г Санкт-Петербург, пр-кт Большой П.С., д 18
Горьковская
—
16 мин
Чкаловская
—
8 мин
Спортивная
—
8 мин
Технические характеристики
Параметры
Электричество
есть
Телекоммуникации
интернет
Охрана
есть
Отопление
есть
Инженерия
пожарная сигнализация
Статус владельца объявления
агентство
Класс
c
Новость дня
Все новости
Вчера — 29 апреля, среда / Москва
Московский цех открыл производство 3D-принтеров для металлической печати.
Вчера — 29 апреля, среда / Москва
БМ-банк завершил продажу большей части площадей в ТЦ «Весна» на Новом Арбате.
Вчера — 29 апреля, среда / Москва
Перефразированное название: "Сеть магазинов 'Жизньмарт' возобновляет свою деятельность в Челябинске"
Вчера — 29 апреля, среда / Санкт-Петербург
Сервисный офис «Практик» начал свою работу на Октябрьской набережной в Санкт-Петербурге.
Вчера — 29 апреля, среда / Санкт-Петербург
Строительство складских помещений в Санкт-Петербурге и Ленинградской области увеличилось в 2,5 раза.
Вчера — 29 апреля, среда / Москва
Москва увеличила объем строительства в рамках программы МПТ до 9,5 миллионов квадратных метров
Вчера — 29 апреля, среда / Санкт-Петербург
Соседский центр "ЖИВИ Клуб" открыл свои двери в Новоселье
Вчера — 29 апреля, среда / Москва
"Завершено строительство пятиэтажной наземной парковки в районе Нагатинский Затон"
Вчера — 29 апреля, среда / Санкт-Петербург
Рекордный уровень строительства складов зафиксирован в Санкт-Петербурге и Ленинградской области
Вчера — 29 апреля, среда / Москва
Аренда складов в Москве снизилась на 25%
28 апреля, вторник / Москва
"Появление двух новых брендов на российском рынке в начале 2026 года"
28 апреля, вторник / Москва
27-этажный бизнес-центр класса А в Коммунарке завершает процесс утверждения своего архитектурного дизайна
28 апреля, вторник / Москва
Перефразированное название статьи: "Открытие первого флагманского магазина Lumique в «Авиапарке»"
28 апреля, вторник / Москва
"Подольская фабрика офсетной печати выставляет на приватизацию 49% своих акций"
28 апреля, вторник / Москва
Самострои в ЮВАО: площадь почти 4 тыс. кв. м за первый квартал
28 апреля, вторник / Москва
Иск на 11,7 млрд рублей подан банком «Санкт-Петербург» к структуре «Гранели»
28 апреля, вторник / Москва
"«Яндекс Фабрика» запускает цепь офлайн-магазинов в Москве"
28 апреля, вторник / Москва
Детская сеть магазинов "Кораблик" столкнулась с финансовыми трудностями
28 апреля, вторник / Москва
Снижение загрузки премиум отелей Москвы в первом квартале до 69,4%
28 апреля, вторник / Крым
"Продается комплекс солнечных электростанций на полуострове Крым"