Снять ПСН 58 м² в ЖК Юнтолово
ID 1334203
Цена
156 085 ₽/мес
Ставка
32 293 ₽ / м² / год
Площадь
58 м²
Этаж
1 из 22
ИФНС
7814
агентство недвижимости
г Санкт-Петербург, пр-кт Юнтоловский, д 51 к 1 стр 1
На карте
Описание
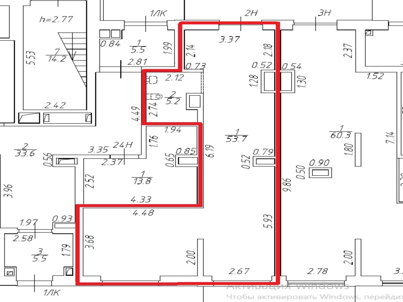
Аренда коммерческих помещений в ЖК «Юнтолово» (7 очередь). Собственник. Без комиссии.Предлагаем в аренду нежилое помещение в новом 3 корпусе 7 очереди ЖК «Юнтолово» площадью 58,9 кв.м. Планировка помещения смешанная открытая, состояние – черновая отделка. Электрическая мощность 13,54 кВтПреимущества помещения:- Высокие потолки 3,3 м - Вход с фасада Юнтоловского проспекта- Центральное отопление - Новые жилые корпуса с активным заселением - В шаговой доступности поликлиника и детский садПомещение подходит для:- Аптеки- Цветочного магазина- Салона красоты/барбершопаАренда под ПВЗ НЕ РАССМАТРИВАЕТСЯ. Отдельно оплачиваются коммунальные платежи. Арендная ставка включает в себя НДС. Предоставляются арендные каникулы.ЖК «Юнтолово» - благоустроенный, динамично развивающийся семейный жилой комплекс Приморского района Санкт-Петербурга. Расположен в живописном и экологичном месте, рядом с Юнтоловским заказником. До центра города всего 11 км. Удобная транспортная доступность: Приморское шоссе и выезд на КАД в 3 км, ЗСД и общественный транспорт. Метро «Беговая» - около 20 минут на транспорте.Есть помещения и других метражей. В ЖК ограниченное количество коммерческих помещений, свободных лотов немного! Возможны гибкие условия для долгосрочных арендаторов. Звоните! Лот № 000006908
Расположение
г Санкт-Петербург, пр-кт Юнтоловский, д 51 к 1 стр 1
Технические характеристики
Свободные помещения в ЖК Юнтолово
Новость дня
Расширение возможностей для B2B-клиентов: Avito вводит новые услуги для строительства складов
На платформе Авито теперь доступна категория "Коммерческое строительство" в сегменте услуг, предлагающая широкий выбор специализированных работ и возведение объектов "под ключ" для бизнеса, что упрощает поиск подрядчиков и субподрядчиков для коммерческих проектов.
Все новости
30 апреля, четверг / Москва
"Бумеранг Капитал" увеличил свою долю в сети кафе-пекарен "Цех 85" до 50%
30 апреля, четверг / Ставропольский
В Кисловодске начался проект строительства инвестиционного отеля "Реликт"
30 апреля, четверг / Москва
Ресторан «Долина 5165» и магазин Sokolov теперь доступны посетителям ТРЦ Avenue Sever
30 апреля, четверг / Москва
"Новый флагманский магазин под названием «Флаувау» открыл свои двери на Мясницкой улице"
30 апреля, четверг / Москва
"Уровень вакансии на складах в Московском регионе достиг 5,4% из-за увеличения предложений по субаренде"
30 апреля, четверг / Москва
"Прогнозируется незначительный прирост числа туристов в первом квартале 2026 года - всего 2,8%"
30 апреля, четверг / Москва
Компания "Ориентир" планирует вложить до 150 млрд рублей в расширение бизнеса и развитие новых секторов.
30 апреля, четверг / Москва
"Завершено строительство наземной парковки на 400 автомобильных мест в парке «Ривер Парк Коломенское»"
30 апреля, четверг / Москва
Скорось открытия новых магазинов «Лэтуаль» снизится - 150 точек закроются к 2026 году.
30 апреля, четверг / Москва
Смайл-бар сети "Белая точка" теперь доступен посетителям ТЦ "Левел Причальный"
29 апреля, среда / Москва
Московский цех открыл производство 3D-принтеров для металлической печати.
29 апреля, среда / Москва
БМ-банк завершил продажу большей части площадей в ТЦ «Весна» на Новом Арбате.
29 апреля, среда / Москва
Перефразированное название: "Сеть магазинов 'Жизньмарт' возобновляет свою деятельность в Челябинске"
29 апреля, среда / Санкт-Петербург
Сервисный офис «Практик» начал свою работу на Октябрьской набережной в Санкт-Петербурге.
29 апреля, среда / Санкт-Петербург
Строительство складских помещений в Санкт-Петербурге и Ленинградской области увеличилось в 2,5 раза.
29 апреля, среда / Москва
Москва увеличила объем строительства в рамках программы МПТ до 9,5 миллионов квадратных метров
29 апреля, среда / Санкт-Петербург
Соседский центр "ЖИВИ Клуб" открыл свои двери в Новоселье
29 апреля, среда / Москва
"Завершено строительство пятиэтажной наземной парковки в районе Нагатинский Затон"
29 апреля, среда / Санкт-Петербург
Рекордный уровень строительства складов зафиксирован в Санкт-Петербурге и Ленинградской области
29 апреля, среда / Москва
Аренда складов в Москве снизилась на 25%