Купить дом 222 м² в тер. ТСН СНТ Васильевка
ID 1321101
Цена
14 400 000 ₽
Ставка
64 865 ₽ / м²
Площадь
222 м²
агентство недвижимости
Ленинградская обл, Всеволожский р-н, массив Мертуть, тер. ТСН СНТ Васильевка
На карте
Проспект Просвещения
—
30 мин
Описание
1705167 Двухэтажный каркасный дом без внутренней отделки на участке 12 соток в садовом потребительском кооперативе "Васильевка", расположенном между Выборгским шоссе и Белоостровом, всего в 17 километрах от КАД. От посёлка до города и обратно можно добраться разными путями - по Выборгскому, Приморскому шоссе или ЗСД .
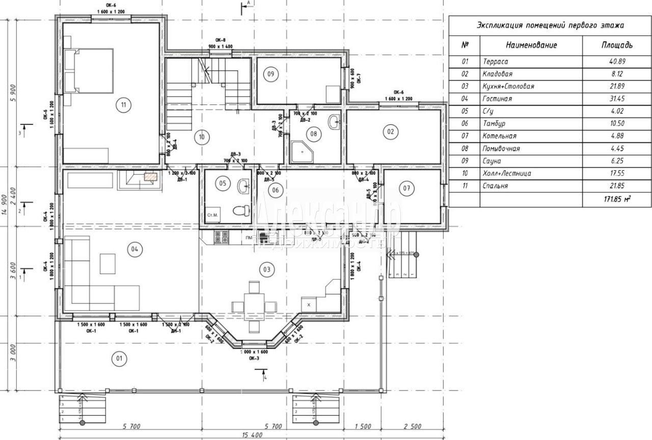
Общая площадь дома 222 кв. м, не считая большой террасы и двух балконов. Дом расположен в благоустроенном поселке с асфальтированными дорогами, что обеспечивает удобный и комфортный подъезд в любое время года. Всего в 10 минутах пешком находятся три озера с чистыми песчаными пляжами, идеальные для отдыха на природе
Здание двухэтажное с мансардным жилым этажом, размером 14,9х15,4 м. Дом имеет оригинальную форму и многоскатную крышу с уклоном 30°, что придает ему уникальный внешний вид.
Надежный фундамент на винтовых сваях (54 сваи) с обвязкой из бруса сечением 200х200 мм.
Дом построен по каркасной технологии с толщиной стен 250 мм, что обеспечивает надежность и отличную теплоизоляцию. Внешняя отделка – имитация бруса с вентилируемым фасадом и дополнительным утеплением.
Многоскатная крыша из гибкой металлочерепицы с утеплением из минераловатных плит, оборудована системой водостоков.
На первом этаже просторная кухня-гостиная с выходом на террасу и "вторым светом", что обеспечивает дополнительное пространство и естественное освещение. Также на этаже расположены одна спальня, большая гардеробная, сауна, санузел, прихожая и техническое помещение.
Второй этаж: Три спальни, две из которых с балконами. Также на этаже расположены санузел и уютная теплая мансарда, которую можно использовать как дополнительную спальню, игровую комнату, кабинет или мастерскую.
На первом этаже частично смонтирована и установлена система водяного теплого пола, частично радиаторы, на втором этаже планируется установка радиаторов.
Поселок полностью благоустроен,: на территории есть продуктовые магазины, а до крупных супермаркетов можно добраться за 10 минут на машине. Все соседи уже построились и проживают круглый год. Дом строился для себя, с учетом всех современных требований к комфорту и качеству материалов.
Больше информации на нашем сайте
Общая площадь дома 222 кв. м, не считая большой террасы и двух балконов. Дом расположен в благоустроенном поселке с асфальтированными дорогами, что обеспечивает удобный и комфортный подъезд в любое время года. Всего в 10 минутах пешком находятся три озера с чистыми песчаными пляжами, идеальные для отдыха на природе
Здание двухэтажное с мансардным жилым этажом, размером 14,9х15,4 м. Дом имеет оригинальную форму и многоскатную крышу с уклоном 30°, что придает ему уникальный внешний вид.
Надежный фундамент на винтовых сваях (54 сваи) с обвязкой из бруса сечением 200х200 мм.
Дом построен по каркасной технологии с толщиной стен 250 мм, что обеспечивает надежность и отличную теплоизоляцию. Внешняя отделка – имитация бруса с вентилируемым фасадом и дополнительным утеплением.
Многоскатная крыша из гибкой металлочерепицы с утеплением из минераловатных плит, оборудована системой водостоков.
На первом этаже просторная кухня-гостиная с выходом на террасу и "вторым светом", что обеспечивает дополнительное пространство и естественное освещение. Также на этаже расположены одна спальня, большая гардеробная, сауна, санузел, прихожая и техническое помещение.
Второй этаж: Три спальни, две из которых с балконами. Также на этаже расположены санузел и уютная теплая мансарда, которую можно использовать как дополнительную спальню, игровую комнату, кабинет или мастерскую.
На первом этаже частично смонтирована и установлена система водяного теплого пола, частично радиаторы, на втором этаже планируется установка радиаторов.
Поселок полностью благоустроен,: на территории есть продуктовые магазины, а до крупных супермаркетов можно добраться за 10 минут на машине. Все соседи уже построились и проживают круглый год. Дом строился для себя, с учетом всех современных требований к комфорту и качеству материалов.
Больше информации на нашем сайте
Расположение
Ленинградская обл, Всеволожский р-н, массив Мертуть, тер. ТСН СНТ Васильевка
Проспект Просвещения
—
30 мин
Технические характеристики
Параметры
Тип сделки
прямая продажа
Водоснабжение
есть
Электричество
есть
Газ
есть
Охрана
есть
Новость дня
Все новости
Сегодня — 30 апреля, четверг / Ставропольский
В Кисловодске начался проект строительства инвестиционного отеля "Реликт"
Сегодня — 30 апреля, четверг / Москва
Ресторан «Долина 5165» и магазин Sokolov теперь доступны посетителям ТРЦ Avenue Sever
Сегодня — 30 апреля, четверг / Москва
"Новый флагманский магазин под названием «Флаувау» открыл свои двери на Мясницкой улице"
Сегодня — 30 апреля, четверг / Москва
"Уровень вакансии на складах в Московском регионе достиг 5,4% из-за увеличения предложений по субаренде"
Сегодня — 30 апреля, четверг / Москва
"Прогнозируется незначительный прирост числа туристов в первом квартале 2026 года - всего 2,8%"
Сегодня — 30 апреля, четверг / Москва
Компания "Ориентир" планирует вложить до 150 млрд рублей в расширение бизнеса и развитие новых секторов.
Сегодня — 30 апреля, четверг / Москва
"Завершено строительство наземной парковки на 400 автомобильных мест в парке «Ривер Парк Коломенское»"
Сегодня — 30 апреля, четверг / Москва
Скорось открытия новых магазинов «Лэтуаль» снизится - 150 точек закроются к 2026 году.
Сегодня — 30 апреля, четверг / Москва
Смайл-бар сети "Белая точка" теперь доступен посетителям ТЦ "Левел Причальный"
Вчера — 29 апреля, среда / Москва
Московский цех открыл производство 3D-принтеров для металлической печати.
Вчера — 29 апреля, среда / Москва
БМ-банк завершил продажу большей части площадей в ТЦ «Весна» на Новом Арбате.
Вчера — 29 апреля, среда / Москва
Перефразированное название: "Сеть магазинов 'Жизньмарт' возобновляет свою деятельность в Челябинске"
Вчера — 29 апреля, среда / Санкт-Петербург
Сервисный офис «Практик» начал свою работу на Октябрьской набережной в Санкт-Петербурге.
Вчера — 29 апреля, среда / Санкт-Петербург
Строительство складских помещений в Санкт-Петербурге и Ленинградской области увеличилось в 2,5 раза.
Вчера — 29 апреля, среда / Москва
Москва увеличила объем строительства в рамках программы МПТ до 9,5 миллионов квадратных метров
Вчера — 29 апреля, среда / Санкт-Петербург
Соседский центр "ЖИВИ Клуб" открыл свои двери в Новоселье
Вчера — 29 апреля, среда / Москва
"Завершено строительство пятиэтажной наземной парковки в районе Нагатинский Затон"
Вчера — 29 апреля, среда / Санкт-Петербург
Рекордный уровень строительства складов зафиксирован в Санкт-Петербурге и Ленинградской области
Вчера — 29 апреля, среда / Москва
Аренда складов в Москве снизилась на 25%
28 апреля, вторник / Москва
"Появление двух новых брендов на российском рынке в начале 2026 года"