Описание
ID: 830368
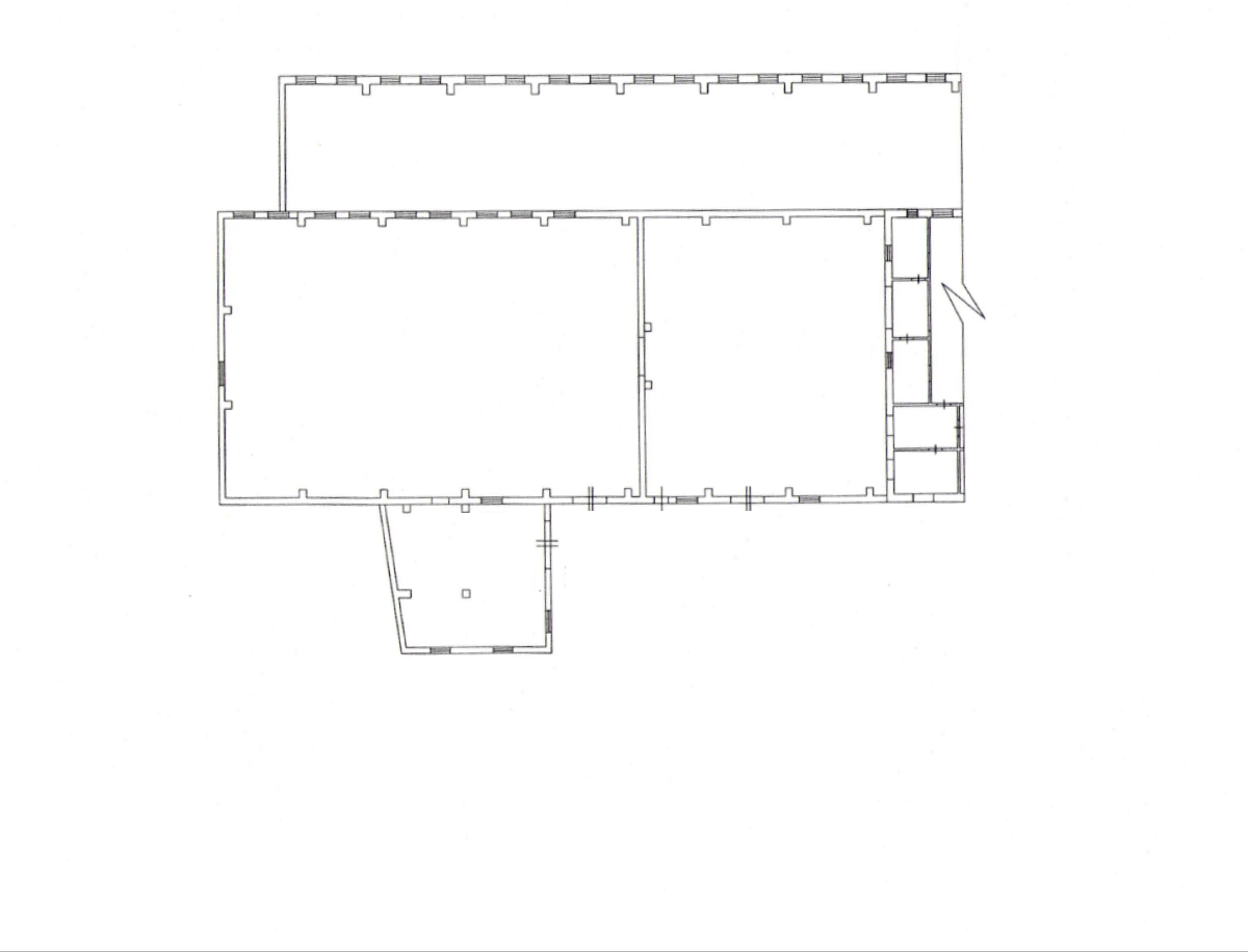
На земле 1217м
Часть нежилого строения с двумя пристройками общей площадью 941,2м (528,7 + 318,1 + 94,4).
Высота 8 метров с возможностью сделать второй этаж с нагрузкой 500кг/1м (все документы уже подготовлены).
Ел-во 200 кВт.
В наличии:
- газ;
- водоснабжение;
- канализация;
- центральное отопление;
- санузел;
- душ.
Стены - красный кирпич.
Пол бетонный покрыт кафельной плиткой.
Перекрытие крыши железобетонное утеплена керамзитом.
С улицы три входа, со двора один вход и три заезда.
Возможен подъезд грузового транспорта.
Свободная парковка со стороны улицы, со стороны двора неограниченная парковка.
Есть возможность увеличить парковку со стороны улицы.
Возможны арендные каникулы в случае проведения ремонта арендатором.
Ставка от 500 руб. метр за все помещение. За меньшею площадь ставка оговаривается
На земле 1217м
Часть нежилого строения с двумя пристройками общей площадью 941,2м (528,7 + 318,1 + 94,4).
Высота 8 метров с возможностью сделать второй этаж с нагрузкой 500кг/1м (все документы уже подготовлены).
Ел-во 200 кВт.
В наличии:
- газ;
- водоснабжение;
- канализация;
- центральное отопление;
- санузел;
- душ.
Стены - красный кирпич.
Пол бетонный покрыт кафельной плиткой.
Перекрытие крыши железобетонное утеплена керамзитом.
С улицы три входа, со двора один вход и три заезда.
Возможен подъезд грузового транспорта.
Свободная парковка со стороны улицы, со стороны двора неограниченная парковка.
Есть возможность увеличить парковку со стороны улицы.
Возможны арендные каникулы в случае проведения ремонта арендатором.
Ставка от 500 руб. метр за все помещение. За меньшею площадь ставка оговаривается
Расположение
Ленинградская обл, г Гатчина, ул 7 Армии, д 22
Технические характеристики
Новость дня
Расширение возможностей для B2B-клиентов: Avito вводит новые услуги для строительства складов
На платформе Авито теперь доступна категория "Коммерческое строительство" в сегменте услуг, предлагающая широкий выбор специализированных работ и возведение объектов "под ключ" для бизнеса, что упрощает поиск подрядчиков и субподрядчиков для коммерческих проектов.
Все новости
30 апреля, четверг / Москва
"Бумеранг Капитал" увеличил свою долю в сети кафе-пекарен "Цех 85" до 50%
30 апреля, четверг / Ставропольский
В Кисловодске начался проект строительства инвестиционного отеля "Реликт"
30 апреля, четверг / Москва
Ресторан «Долина 5165» и магазин Sokolov теперь доступны посетителям ТРЦ Avenue Sever
30 апреля, четверг / Москва
"Новый флагманский магазин под названием «Флаувау» открыл свои двери на Мясницкой улице"
30 апреля, четверг / Москва
"Уровень вакансии на складах в Московском регионе достиг 5,4% из-за увеличения предложений по субаренде"
30 апреля, четверг / Москва
"Прогнозируется незначительный прирост числа туристов в первом квартале 2026 года - всего 2,8%"
30 апреля, четверг / Москва
Компания "Ориентир" планирует вложить до 150 млрд рублей в расширение бизнеса и развитие новых секторов.
30 апреля, четверг / Москва
"Завершено строительство наземной парковки на 400 автомобильных мест в парке «Ривер Парк Коломенское»"
30 апреля, четверг / Москва
Скорось открытия новых магазинов «Лэтуаль» снизится - 150 точек закроются к 2026 году.
30 апреля, четверг / Москва
Смайл-бар сети "Белая точка" теперь доступен посетителям ТЦ "Левел Причальный"
29 апреля, среда / Москва
Московский цех открыл производство 3D-принтеров для металлической печати.
29 апреля, среда / Москва
БМ-банк завершил продажу большей части площадей в ТЦ «Весна» на Новом Арбате.
29 апреля, среда / Москва
Перефразированное название: "Сеть магазинов 'Жизньмарт' возобновляет свою деятельность в Челябинске"
29 апреля, среда / Санкт-Петербург
Сервисный офис «Практик» начал свою работу на Октябрьской набережной в Санкт-Петербурге.
29 апреля, среда / Санкт-Петербург
Строительство складских помещений в Санкт-Петербурге и Ленинградской области увеличилось в 2,5 раза.
29 апреля, среда / Москва
Москва увеличила объем строительства в рамках программы МПТ до 9,5 миллионов квадратных метров
29 апреля, среда / Санкт-Петербург
Соседский центр "ЖИВИ Клуб" открыл свои двери в Новоселье
29 апреля, среда / Москва
"Завершено строительство пятиэтажной наземной парковки в районе Нагатинский Затон"
29 апреля, среда / Санкт-Петербург
Рекордный уровень строительства складов зафиксирован в Санкт-Петербурге и Ленинградской области
29 апреля, среда / Москва
Аренда складов в Москве снизилась на 25%