Главная
Аренда складских помещений в Санкт-Петербурге и ЛО
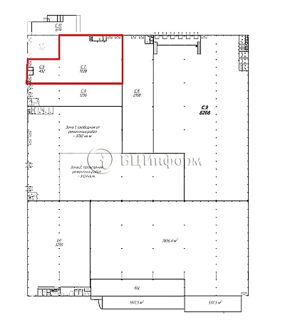
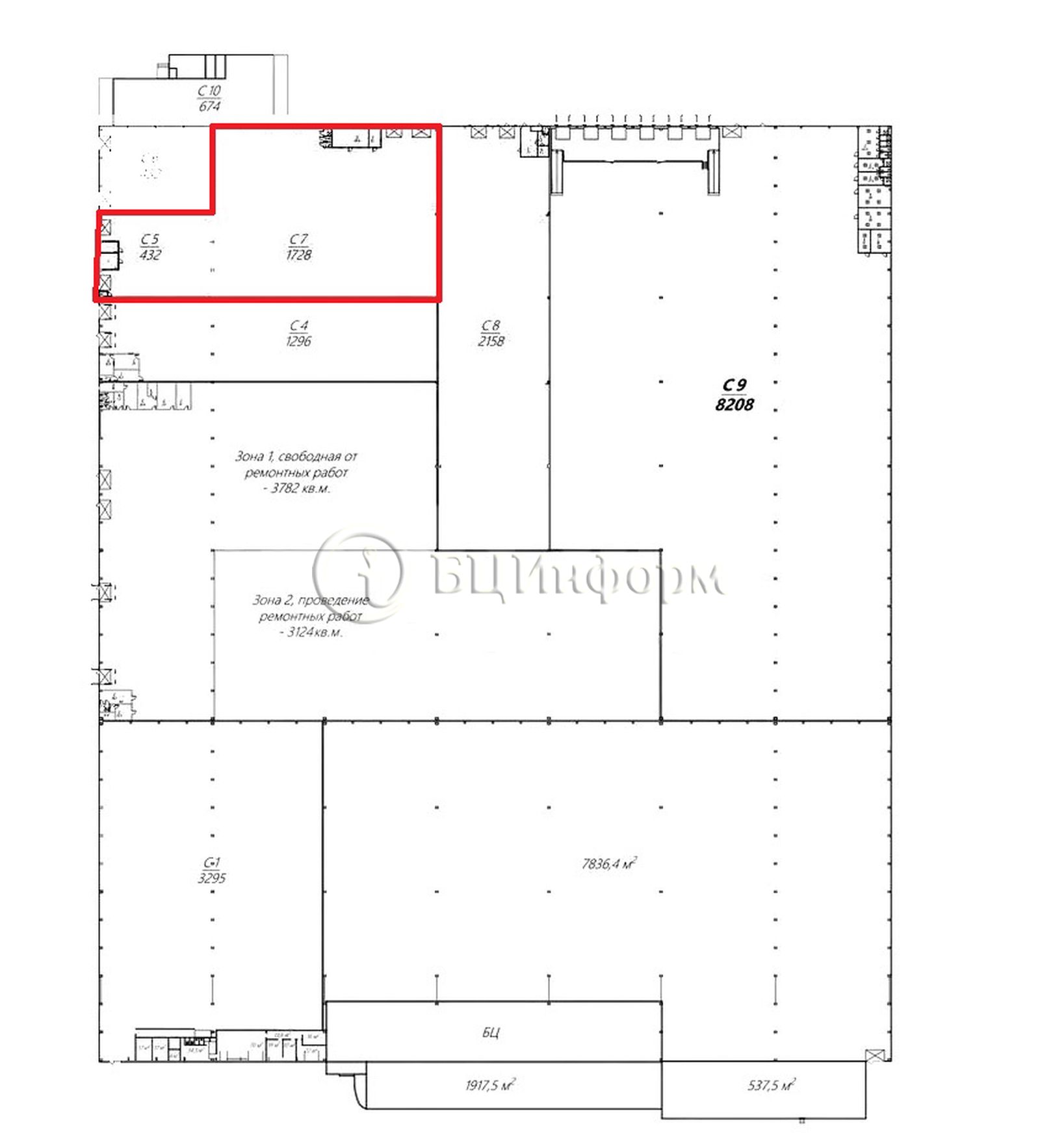
Склад 1728 м² в ReForma 1-й Верхний переулок
Снять склад 1728 м² в ReForma 1-й Верхний переулок
Описание
В аренду предлагается отапливаемое помещение под склад, общей площадью 1728 м.кв.
Расположено в одноэтажном здании.
Открытая планировка, бытовые помещения, санузел.
Высота потолка 12.5 м (до фермы).
Стены: сэндвич панели (утепленные). Напольное покрытие – антипылевое полимерное покрытие.
Шаг колонн по осям — 18,0 х 24,0 м.
Подъемно-секционные ворота – 6 шт. (3 х4).
Автономная газовая котельная (температурный режим от 10ºС+).
Два независимых электрических ввода; система пожарной сигнализации; система дымоудаления; внутренний пожарный водопровод;
Электроосвещение: светодиодные светильники.
Видеонаблюдения по периметру. Контрольно-пропускной режим (въезд/выезд).
Охраняемая внутренняя парковка.
Прилегающая территория к складскому комплексу: зона разгрузки/погрузки.
Станция метро "Парнас" - 10 минут (на транспорте).
Возможность аренды офисных помещений рядом со складским комплексом.
Въезд на территорию осуществляется с двух сторон: КПП на пр. Культуры и со стороны 2-го Верхнего переулка.
Готово к въезду потенциального арендатора. Договор аренды напрямую с собственником, без скрытых комиссий и платежей.
Расположено в одноэтажном здании.
Открытая планировка, бытовые помещения, санузел.
Высота потолка 12.5 м (до фермы).
Стены: сэндвич панели (утепленные). Напольное покрытие – антипылевое полимерное покрытие.
Шаг колонн по осям — 18,0 х 24,0 м.
Подъемно-секционные ворота – 6 шт. (3 х4).
Автономная газовая котельная (температурный режим от 10ºС+).
Два независимых электрических ввода; система пожарной сигнализации; система дымоудаления; внутренний пожарный водопровод;
Электроосвещение: светодиодные светильники.
Видеонаблюдения по периметру. Контрольно-пропускной режим (въезд/выезд).
Охраняемая внутренняя парковка.
Прилегающая территория к складскому комплексу: зона разгрузки/погрузки.
Станция метро "Парнас" - 10 минут (на транспорте).
Возможность аренды офисных помещений рядом со складским комплексом.
Въезд на территорию осуществляется с двух сторон: КПП на пр. Культуры и со стороны 2-го Верхнего переулка.
Готово к въезду потенциального арендатора. Договор аренды напрямую с собственником, без скрытых комиссий и платежей.
Расположение
г Санкт-Петербург, пер 1-й Верхний, д 12 литера а
Гражданский проспект
—
39 мин
Парнас
—
31 мин
Проспект Просвещения
—
36 мин
Девяткино
—
46 мин
Технические характеристики
Параметры
Электричество
есть
Телекоммуникации
интернет
Охрана
есть
Отопление
есть
Инженерия
пожарная сигнализация, лифт
Статус владельца объявления
агентство
Класс
b
Новость дня
Расширение возможностей для B2B-клиентов: Avito вводит новые услуги для строительства складов
На платформе Авито теперь доступна категория "Коммерческое строительство" в сегменте услуг, предлагающая широкий выбор специализированных работ и возведение объектов "под ключ" для бизнеса, что упрощает поиск подрядчиков и субподрядчиков для коммерческих проектов.
Все новости
30 апреля, четверг / Москва
"Бумеранг Капитал" увеличил свою долю в сети кафе-пекарен "Цех 85" до 50%
30 апреля, четверг / Ставропольский
В Кисловодске начался проект строительства инвестиционного отеля "Реликт"
30 апреля, четверг / Москва
Ресторан «Долина 5165» и магазин Sokolov теперь доступны посетителям ТРЦ Avenue Sever
30 апреля, четверг / Москва
"Новый флагманский магазин под названием «Флаувау» открыл свои двери на Мясницкой улице"
30 апреля, четверг / Москва
"Уровень вакансии на складах в Московском регионе достиг 5,4% из-за увеличения предложений по субаренде"
30 апреля, четверг / Москва
"Прогнозируется незначительный прирост числа туристов в первом квартале 2026 года - всего 2,8%"
30 апреля, четверг / Москва
Компания "Ориентир" планирует вложить до 150 млрд рублей в расширение бизнеса и развитие новых секторов.
30 апреля, четверг / Москва
"Завершено строительство наземной парковки на 400 автомобильных мест в парке «Ривер Парк Коломенское»"
30 апреля, четверг / Москва
Скорось открытия новых магазинов «Лэтуаль» снизится - 150 точек закроются к 2026 году.
30 апреля, четверг / Москва
Смайл-бар сети "Белая точка" теперь доступен посетителям ТЦ "Левел Причальный"
29 апреля, среда / Москва
Московский цех открыл производство 3D-принтеров для металлической печати.
29 апреля, среда / Москва
БМ-банк завершил продажу большей части площадей в ТЦ «Весна» на Новом Арбате.
29 апреля, среда / Москва
Перефразированное название: "Сеть магазинов 'Жизньмарт' возобновляет свою деятельность в Челябинске"
29 апреля, среда / Санкт-Петербург
Сервисный офис «Практик» начал свою работу на Октябрьской набережной в Санкт-Петербурге.
29 апреля, среда / Санкт-Петербург
Строительство складских помещений в Санкт-Петербурге и Ленинградской области увеличилось в 2,5 раза.
29 апреля, среда / Москва
Москва увеличила объем строительства в рамках программы МПТ до 9,5 миллионов квадратных метров
29 апреля, среда / Санкт-Петербург
Соседский центр "ЖИВИ Клуб" открыл свои двери в Новоселье
29 апреля, среда / Москва
"Завершено строительство пятиэтажной наземной парковки в районе Нагатинский Затон"
29 апреля, среда / Санкт-Петербург
Рекордный уровень строительства складов зафиксирован в Санкт-Петербурге и Ленинградской области
29 апреля, среда / Москва
Аренда складов в Москве снизилась на 25%