Описание
Показ в удобное время. С АГЕНТАМИ РАБОТАЕМ И ПЛАТИМ. Жилой комплекс Байрон расположен вдоль зеленой и тихой ул. Кустодиева в Выборгском районе Санкт-Петербурга. Оригинальное архитектурное решение предполагает наличие разновысотных секций от 15 до 25 этажей, малоэтажных секций до 5-ти этажей. Описание помещения: 2 входа.
Витринные окна.
Электрическая мощность 32.91 кВт.
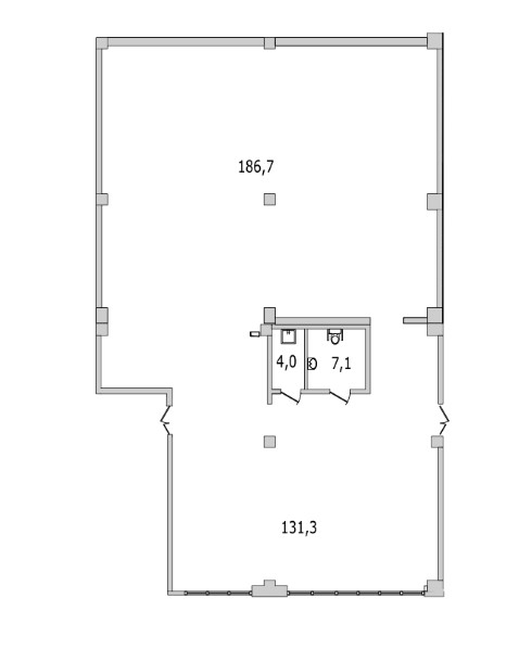
Отдельный вход. Этаж: 2. Планировка: открытая ( open space ). Под чистовую отделку. Высота потолка: 2.75м. Тип налогообложения: УСН. Налоговая: 17. Лифты: Есть. Вентиляция: . Кондиционирование: . Безопасность: Контроль доступа, Видеонаблюдение. Провайдеры: . Парковка: Наземная. Лот 72649-125
Витринные окна.
Электрическая мощность 32.91 кВт.
Отдельный вход. Этаж: 2. Планировка: открытая ( open space ). Под чистовую отделку. Высота потолка: 2.75м. Тип налогообложения: УСН. Налоговая: 17. Лифты: Есть. Вентиляция: . Кондиционирование: . Безопасность: Контроль доступа, Видеонаблюдение. Провайдеры: . Парковка: Наземная. Лот 72649-125
Расположение
г Санкт-Петербург, ул Кустодиева, д 7 к 1 стр 1
Проспект Просвещения
—
3 мин
Озерки
—
28 мин
Парнас
—
35 мин
Технические характеристики
Свободные помещения в ЖК Байрон
Новость дня
Все новости
Вчера — 12 декабря, пятница / Москва
За первое полугодие в Москве разрешено строительство объектов площадью 14,5 миллиона квадратных метров
Вчера — 12 декабря, пятница / Москва
Рост числа вновь открывшихся отелей в России тройной к 2025 году.
Вчера — 12 декабря, пятница / Москва
Остафьево стал муниципальным аэропортом Москвы
Вчера — 12 декабря, пятница / Санкт-Петербург
Популярность офисных помещений в Петербурге остается на уровне от 4 до 4,5%
Вчера — 12 декабря, пятница / Москва
"Начато строительство пешеходного моста в Москве, связывающего районы Хорошёво-Мнёвники и Крылатское"
Вчера — 12 декабря, пятница / Москва
«Эталон» продал Москве шесть земельных участков на сумму 1,6 млрд рублей
Вчера — 12 декабря, пятница / Санкт-Петербург
Участок на первой линии проспекта Обуховской Обороны выставлен на продажу в Санкт-Петербурге
Вчера — 12 декабря, пятница / Москва
Инвестор планирует построить здание площадью 60 000 квадратных метров в Особой экономической зоне "Технополис Москва".
Вчера — 12 декабря, пятница / Москва
Антон Пинский приобрел 70 ресторанов Prime у Аркадия Новикова.
Вчера — 12 декабря, пятница / Санкт-Петербург
Экс-владельцу отеля «Талион» грозит 3,5 года тюрьмы за сокрытие налогов
11 декабря, четверг / Москва
В 2025 году ожидается установление рекорда десятилетия по вводу коммерческой недвижимости
11 декабря, четверг / Москва
"Строительство общественно-делового корпуса площадью 85,4 тыс. кв. м запланировано в Особой экономической зоне «Технополис Москва»"
11 декабря, четверг / Санкт-Петербург
"Динамика арендных тарифов на офисы в Санкт-Петербурге увеличилась на половину за последние пять лет"
11 декабря, четверг / Москва
"В Москве открылся новый районный центр «Место встречи Патриот» на северо-западе города"
11 декабря, четверг / Санкт-Петербург
В 2026 году иностранным брендам не стоит рассчитывать на активное присутствие в Торговом Центре Петербурга.
11 декабря, четверг / Санкт-Петербург
План развития Санкт-Петербурга предусматривает переселение 28 предприятий пищевой промышленности
11 декабря, четверг / Москва
Научно-исследовательский комплекс площадью 65,7 тыс. кв. м будет открыт в Особой экономической зоне "Технополис Москва"
11 декабря, четверг / Москва
Гипермаркеты «О'кей» теперь владеет компания «Земун»
11 декабря, четверг / Ставропольский
Планируется строительство акватермального комплекса в Ставрополе стоимостью 5,6 млрд рублей.
11 декабря, четверг / Москва
Планируется расширение производственно-складских площадей в ИП «Северные Врата» на 60 тыс. кв. м